Foto leveres af Google Street View og kan være upræcist:
Fri kontakt

Lager & Kontor til leje, Odense SØ, Svovlhatten 3

Svovlhatten 3, 5220 Odense SØ
  • Lager til leje
  • 681 m2
  • 28.287 kr. per måned
Lager & Kontor til leje, Odense SØ, Svovlhatten 3
Svovlhatten 3, 5220 Odense SØ
  • Lager til leje
  • 681 m2
  • 28.287 kr. per måned

Lager & Kontor til leje, Odense SØ, Svovlhatten 3

Heimstaden Erhverv
Morten A.
tlf: 21756610
Se email-adressexxxxxxxxxxxxxxxx

Læs om udlejer

Fakta

Rapportér fejl
  • 173015
  • Lager
  • Kontor
  • 681 m2
  • 339.445 kr.
  • 28.287 kr.
  • 450 kr.

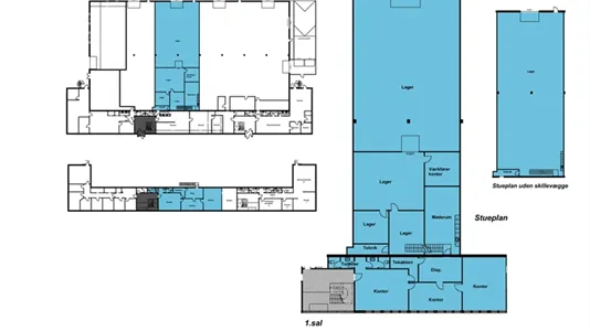
Lager & kontor til leje i 5220 Odense SØ

Lagerlejemål på 517 kvm. samt tilhørende kontorer på 164 kvm. Direkte adgang mellem kontor og lager. Lagerhøjden er ca. 5 m. under loft og ca. 4,5 m. under drager. Lageret er velegnet til både opbevaring og let produktion mv. Lageret er p.t. opdelt på ca. 300 kvm. lager, plus et lager på 70 kvm., samt 2 mindre lagerrum, et værkførerkontor og et stort personale/møderum, samt stor repos til eks. arkiv. Desuden nem portadgang til lageret samtidig med, at der er monteret adgangsdør ved siden af porten. Mulighed for let produktion i lageret. Optimale tilkørselsforhold, som sikrer effektiv logistik. Der er kørefast udenomsareal med god plads til lastbiler og af-og pålæsning. Kontoret er indrettet med te-køkken, 2 toiletsektioner, samt 4 kontorer i forskellige gode størrelser. Fin grundbelysning og godt lysindfald. Tæppebelagte gulve. Fleksible indretningsmuligheder. Gratis parkeringspladser på ejendommen/foran lejemålet, ligesom ejendommen har god eksponering mod den befærdede Ørbækvej med lejemålets facade direkte mod denne. Kontakt os for yderligere information eller en fremvisning. Masser af muligheder til mange typer af virksomheder.

Lignende lokaler

Ofte stillede spørgsmål

Statistik over udviklingen i lagerlokaler til leje i Odense SØ over den sidste måned

Herunder ser du udviklingen i udbuddet og udlejningen af ledige lagerlokaler til leje i Odense SØ over den sidste måned. I den første kolonne ser du datoen. I den anden kolonne ser du det samlede antal lagerlokaler til leje i Odense SØ på datoen. I den tredje kolonne ser du antallet af nye lagerlokaler i Odense SØ der er udbudt til leje på datoen. I den fjerde kolonne ser du antallet af lagerlokaler i Odense SØ der er udlejet på datoen. Se også samlet statistik over alle udbudte lagerlokaler i Odense SØ over tid, samlet statistik over nye lagerlokaler i Odense SØ over tid, samlet statistik over udlejede lagerlokaler i Odense SØ over tid.

Dato Alle lagerlokaler til leje Nye lagerlokaler til leje Udlejede lagerlokaler
25. oktober 2025 43 0 1
24. oktober 2025 44 0 0
23. oktober 2025 44 0 0
22. oktober 2025 44 0 1
21. oktober 2025 45 0 0
20. oktober 2025 45 0 0
19. oktober 2025 45 0 0
18. oktober 2025 45 4 0
17. oktober 2025 41 1 0
16. oktober 2025 40 8 1
15. oktober 2025 33 0 0
14. oktober 2025 33 0 0
13. oktober 2025 33 0 0
12. oktober 2025 33 2 0
11. oktober 2025 31 0 1
10. oktober 2025 32 0 0
9. oktober 2025 32 0 3
8. oktober 2025 35 0 1
7. oktober 2025 36 0 0
6. oktober 2025 36 0 1
5. oktober 2025 37 1 0
4. oktober 2025 36 0 1
3. oktober 2025 37 0 0
2. oktober 2025 37 0 2
1. oktober 2025 39 0 0
30. september 2025 39 0 1
29. september 2025 40 0 0
28. september 2025 40 0 0
27. september 2025 40 0 0
26. september 2025 40 0 0
25. september 2025 40 0 0

Statistik over udbuddet af lagerlokaler til leje i Odense SØ

I nedenstående tabel ser du en række data om udbuddet af lagerlokaler til leje i Odense SØ. Se også samlet statistik over alle udbudte lagerlokaler i Odense SØ over tid, samlet statistik over nye lagerlokaler i Odense SØ over tid, samlet statistik over udlejede lagerlokaler i Odense SØ over tid.

Lagerlokaler
Antal ledige lokaler 41
Antal nye lokaler siden i går 0
Antal udlejede lokaler siden i går 1
Ledige m2 i alt 153.443
Gennemsnitlig pris per m2 per år uden drift 502
Højeste m2-pris 750
Laveste m2-pris 1