Kontor til leje, Støvring, Grangårdscentret
Grangårdscentret, 9530 Støvring- Kontor til leje
- 24 - 483 m2
- Kontor til leje
- 24 - 483 m2
⚡Se alle oplysninger om lejemålet og få direkte adgang til udlejerens kontaktoplysninger.
Kontor til leje, Støvring, Grangårdscentret
Udlejning af kontor i Støvring Centrum
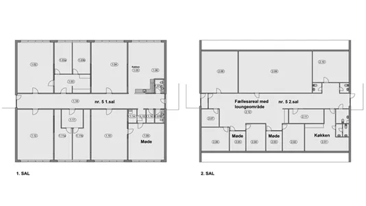
Vi kan tilbyde kontorlokaler i nr. 5 på 1. sal, hvor lokale 1.02 på 48 m² og 1.11B på 24 m² ledige.
Centret er placeret centralt i Støvring, kun få minutter fra motorvejen og mindre end 20 km fra Aalborg, hvilket gør det nemt for både dig og dine kunder at komme til og fra adressen. Og med mere end 100 gratis parkeringspladser lige ved døren slipper du for besværet med p-skiver og betalingsanlæg.
Indenfor finder du lyse fællesområder, et lækkert fælleskøkken med god spiseplads, toiletfaciliteter og et mødelokale, som du frit kan benytte til kundemøder og samarbejdssamtaler.
Kontorlokalerne ligger på 1. og 2. sal. Hele 2. sal er udlejet til Rebild Kommune, mens 1. sal rummer en række forskellige virksomheder.
Vil du høre mere eller se de ledige lokaler? Kontakt os – vi giver gerne en rundvisning.
Information og data
Dette kontorlejemål, ligger i Støvring. Støvring har postnummeret 9530, og ligger i kommunen Rebild, som ligger i Region Nordjylland. Lokalet er i alt 483 m2.
Lignende lokaler
-
242 m2 kontor til leje i 9530 Støvring
- 15.125 kr. per måned
- 750 kr/m2/år
-
80 m2 kontor til leje i 9530 Støvring
- 9.500 kr. per måned
- 1.425 kr/m2/år
-
8211 m2 kontor til leje i 9530 Støvring
- 210 kr. per måned
- 0,31 kr/m2/år
Ofte stillede spørgsmål
Statistik over udviklingen i kontorlokaler til leje i Støvring over den sidste måned
Herunder ser du udviklingen i udbuddet og udlejningen af ledige kontorlokaler til leje i Støvring over den sidste måned. I den første kolonne ser du datoen. I den anden kolonne ser du det samlede antal kontorlokaler til leje i Støvring på datoen. I den tredje kolonne ser du antallet af nye kontorlokaler i Støvring der er udbudt til leje på datoen. I den fjerde kolonne ser du antallet af kontorlokaler i Støvring der er udlejet på datoen. Se også samlet statistik over alle udbudte kontorlokaler i Støvring over tid, samlet statistik over nye kontorlokaler i Støvring over tid, samlet statistik over udlejede kontorlokaler i Støvring over tid.
| Dato | Alle kontorlokaler til leje | Nye kontorlokaler til leje | Udlejede kontorlokaler |
|---|---|---|---|
| 18. november 2025 | 13 | 0 | 0 |
| 17. november 2025 | 13 | 0 | 0 |
| 16. november 2025 | 13 | 0 | 0 |
| 15. november 2025 | 13 | 1 | 0 |
| 14. november 2025 | 12 | 1 | 1 |
| 13. november 2025 | 12 | 0 | 0 |
| 12. november 2025 | 12 | 0 | 0 |
| 11. november 2025 | 12 | 0 | 0 |
| 10. november 2025 | 12 | 0 | 0 |
| 9. november 2025 | 12 | 0 | 0 |
| 8. november 2025 | 12 | 0 | 0 |
| 7. november 2025 | 12 | 0 | 0 |
| 6. november 2025 | 12 | 0 | 0 |
| 5. november 2025 | 12 | 0 | 0 |
| 4. november 2025 | 12 | 0 | 0 |
| 3. november 2025 | 12 | 0 | 0 |
| 2. november 2025 | 12 | 0 | 0 |
| 1. november 2025 | 12 | 1 | 0 |
| 31. oktober 2025 | 11 | 0 | 1 |
| 30. oktober 2025 | 12 | 0 | 0 |
| 29. oktober 2025 | 12 | 0 | 0 |
| 28. oktober 2025 | 12 | 0 | 0 |
| 27. oktober 2025 | 12 | 0 | 0 |
| 26. oktober 2025 | 12 | 0 | 0 |
| 25. oktober 2025 | 12 | 0 | 0 |
| 24. oktober 2025 | 12 | 0 | 1 |
| 23. oktober 2025 | 13 | 0 | 0 |
| 22. oktober 2025 | 13 | 0 | 0 |
| 21. oktober 2025 | 13 | 0 | 0 |
| 20. oktober 2025 | 13 | 0 | 0 |
| 19. oktober 2025 | 13 | 0 | 0 |
Statistik over udbuddet af kontorlokaler til leje i Støvring
I nedenstående tabel ser du en række data om udbuddet af kontorlokaler til leje i Støvring. Se også samlet statistik over alle udbudte kontorlokaler i Støvring over tid, samlet statistik over nye kontorlokaler i Støvring over tid, samlet statistik over udlejede kontorlokaler i Støvring over tid.
| Kontorlokaler | |
|---|---|
| Antal ledige lokaler | 10 |
| Antal nye lokaler siden i går | 0 |
| Antal udlejede lokaler siden i går | 0 |
| Ledige m2 i alt | 10.815 |
| Gennemsnitlig pris per m2 per år uden drift | 819 |
| Højeste m2-pris | 1.425 |
| Laveste m2-pris | 350 |