Kontor til leje, Odense C, Torvegade
Torvegade, 5000 Odense C- Kontor til leje
- Ca. 365 m2
- Ca. 24.500 kr. per måned
- Kontor til leje
- Ca. 365 m2
- Ca. 24.500 kr. per måned
⚡ Se alle oplysninger om lejemålet og få direkte adgang til udlejerens kontaktoplysninger.
Kontor til leje, Odense C, Torvegade
Kontor til leje i 5000 Odense C
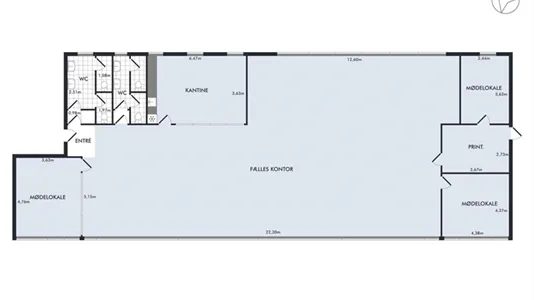
På 3. sal i markant ejendom lige ved H.C. Andersen museet og Odense Letbane udlejes veldisponeret kontorlejemål. Lejemålet er beliggende på 3. sal i samme ejendom som Arbejdernes Landsbank. Lejemålet entreres enten via trappe eller via elevator.
Lejemålet indeholder to mødelokaler, åbent kontormiljø med mulighed for yderligere opdeling, 4 toiletter samt spisekøkken og arkivrum. Fra lejemålet er der adgang til ugeneret tagterrasse med udsigt til Fisketorvet og Overgadekvarteret.
Lejemålet er apteret med lyddæmpende systemlofter, god grundbelysning, kabling, ventilationsanlæg, tæppefliser på gulvet.
Lejemålet kan overtages efter nærmere aftale.
Tak for din interesse i ejendommen
Sagsprospektet vil blive sendt til din mail, men du kan også se det med det samme på nedenstående link.
Tak for din henvendelse. Din besked vil blive behandlet hurtigst muligt.
Få besked om nye ejendomme før andre
Tak for din tilmelding
Vi har noteret dine ønsker.
Vi kontakter dig, så snart der er en ejendom, som matcher dine kriterier.
Få en uvildig vurdering af din erhvervsejendom
Tak for din henvendelse.
Vi kontakter dig snarest muligt for at aftale dato og tidspunkt for vurderingen.
Information og data
Dette kontorlejemål, ligger i Odense C. Odense C har postnummeret 5000, og ligger i kommunen Odense, som ligger i Odense. Lokalet er i alt 364 m2. Du kan leje dette kontorlokale for Ca. 291.000 kr. per år.
Lignende lokaler
-
Ca. 125 m2 kontor til leje i 5000 Odense C
Fri kontakt- Ca. 10.000 kr. per måned
- Ca. 1.000 kr/m2/år
-
Ca. 70 m2 kontor til leje i 5000 Odense C
Fri kontakt- Ca. 6.000 kr. per måned
- Ca. 1.000 kr/m2/år
-
Ca. 100 m2 kontor til leje i 5000 Odense C
Fri kontakt- Ca. 9.000 kr. per måned
- Ca. 1.000 kr/m2/år
Ofte stillede spørgsmål
Statistik over udviklingen i kontorlokaler til leje i Odense C over den sidste måned
Herunder ser du udviklingen i udbuddet og udlejningen af ledige kontorlokaler til leje i Odense C over den sidste måned. I den første kolonne ser du datoen. I den anden kolonne ser du det samlede antal kontorlokaler til leje i Odense C på datoen. I den tredje kolonne ser du antallet af nye kontorlokaler i Odense C der er udbudt til leje på datoen. I den fjerde kolonne ser du antallet af kontorlokaler i Odense C der er udlejet på datoen. Se også samlet statistik over alle udbudte kontorlokaler i Odense C over tid, samlet statistik over nye kontorlokaler i Odense C over tid, samlet statistik over udlejede kontorlokaler i Odense C over tid.
| Dato | Alle kontorlokaler til leje | Nye kontorlokaler til leje | Udlejede kontorlokaler |
|---|---|---|---|
| 12. marts 2026 | 275 | 13 | 0 |
| 11. marts 2026 | 262 | 0 | 10 |
| 10. marts 2026 | 272 | 0 | 3 |
| 9. marts 2026 | 275 | 0 | 2 |
| 8. marts 2026 | 277 | 0 | 0 |
| 7. marts 2026 | 277 | 0 | 0 |
| 6. marts 2026 | 277 | 7 | 0 |
| 5. marts 2026 | 270 | 1 | 7 |
| 4. marts 2026 | 276 | 1 | 2 |
| 3. marts 2026 | 277 | 10 | 0 |
| 2. marts 2026 | 267 | 0 | 12 |
| 1. marts 2026 | 279 | 0 | 0 |
| 28. februar 2026 | 279 | 8 | 0 |
| 27. februar 2026 | 271 | 19 | 0 |
| 26. februar 2026 | 252 | 1 | 20 |
| 25. februar 2026 | 271 | 6 | 0 |
| 24. februar 2026 | 265 | 0 | 12 |
| 23. februar 2026 | 277 | 27 | 0 |
| 22. februar 2026 | 250 | 0 | 27 |
| 21. februar 2026 | 277 | 0 | 0 |
| 20. februar 2026 | 277 | 1 | 1 |
| 19. februar 2026 | 277 | 6 | 0 |
| 18. februar 2026 | 271 | 0 | 5 |
| 17. februar 2026 | 276 | 5 | 0 |
| 16. februar 2026 | 271 | 0 | 5 |
| 15. februar 2026 | 276 | 1 | 0 |
| 14. februar 2026 | 275 | 7 | 0 |
| 13. februar 2026 | 268 | 0 | 7 |
| 12. februar 2026 | 275 | 3 | 0 |
| 11. februar 2026 | 272 | 0 | 6 |
| 10. februar 2026 | 278 | 0 | 0 |
Statistik over udbuddet af kontorlokaler til leje i Odense C
I nedenstående tabel ser du en række data om udbuddet af kontorlokaler til leje i Odense C. Se også samlet statistik over alle udbudte kontorlokaler i Odense C over tid, samlet statistik over nye kontorlokaler i Odense C over tid, samlet statistik over udlejede kontorlokaler i Odense C over tid.
| Kontorlokaler | |
|---|---|
| Antal ledige lokaler | 274 |
| Antal nye lokaler siden i går | 13 |
| Antal udlejede lokaler siden i går | 0 |
| Ledige m2 i alt | 173.510 |
| Gennemsnitlig pris per m2 per år uden drift | 1.973 |
| Højeste m2-pris | 136.800 |
| Laveste m2-pris | 350 |