Foto leveres af Google Street View og kan være upræcist:
Fri kontakt

Kontorfællesskab til leje, Kolding

6000 Kolding
  • Kontorfællesskab til leje
Kontorfællesskab til leje, Kolding
6000 Kolding
  • Kontorfællesskab til leje
Få mere info om lokalet

⚡ Se alle oplysninger om lejemålet og få direkte adgang til udlejerens kontaktoplysninger.

Kontorfællesskab til leje, Kolding

Copenhagen Real Estate
Susanne Skouenborg
tlf: +45 30 20 45 07
Se email-adressexxxxxxxxxxxxxxxx

PRO-UDLEJER

Læs mere

Læs om udlejer

Fakta

Rapportér fejl
  • 293098
  • Kontorfællesskab
  • Ikke angivet

Ingen binding, kontor til 1.425 kr.

Kampagne: Angivet pris på 1.425 kr. er kampagnepris svarende til 50% rabat. Rabat er gældende de første 3 måneder. Herefter 2.850 kr. pr. måned.
Kampagnen gælder kun nye lejere i EasyOffice

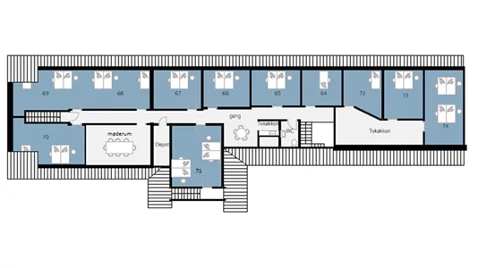
Lyse kontorlokaler på Centervej 2A i Kolding


På Centervej 2A får du et kontorlokale til leje i Kolding med fleksible vilkår og rolige omgivelser. Her kombineres en fredelig beliggenhed med professionelle rammer, så du kan arbejde fokuseret uden at gå på kompromis med kvalitet.

Du får dit eget kontor i et mindre og professionelt miljø, hvor der er plads til både fordybelse og sparring i hverdagen. Det er en oplagt løsning for dig, der ønsker en stabil base i Kolding – men uden lange kontrakter eller tunge bindinger.

Rolige omgivelser og hyggelig gårdatmosfære


Unikke omgivelser


Centervej 2A adskiller sig fra traditionelle kontorbygninger. Her får du en hyggelig gård med en rolig atmosfære og et mere personligt arbejdsmiljø, hvor arbejdsdagen føles afslappet og indbydende. Det skaber en god balance mellem professionelle rammer og trivsel – noget mange virksomheder i dag vægter højt.

Kontorlokaler med flotte detaljer


Lokalerne har fine, synlige bjælker, som giver rummene varme og karakter – ideelt for dig, der ønsker indbydende erhvervslokaler i Kolding

Fredelig beliggenhed tæt på grønne områder


Ejendommen ligger tæt på grønne arealer og villaveje, hvilket giver en afslappet base i hverdagen. Her får du ro til at arbejde effektivt – uden at være langt fra byens faciliteter.

Fleksibelt erhvervslejemål i Kolding – ingen binding og all inclusive


Her får du et velholdt erhvervslejemål i Kolding, der passer til konsulenter, mindre virksomheder og selvstændige.

Som en del af EasyOffice får du:
• Erhvervslejemål uden binding, og kort opsigelse
• Gennemsigtige vilkår
• Lyse, velholdte lokaler i flot stand
• Høj kvalitet til en konkurrencedygtig pris

Det gør dette kontorlokale på Centervej 2A i Kolding attraktivt, hvis du ønsker fleksibilitet og mulighed for at skalere din virksomhed.

Nem adgang, gratis parkering og transport


Kontorlokale med gratis parkering


Du får kontorlokale med parkering og der er gratis pladser lige ved indgangen – nemt for både medarbejdere og kunder. Det gør hverdagen mere enkel og sparer tid i en travl arbejdsuge.

Offentlig transport og station


Der er ca. 89 meter (1–2 minutters gang) til nærmeste busstoppested ved Bramdrupskovvej/Centervej. Kolding Station ligger ca. 4 km væk (typisk 8–10 minutters kørsel), hvilket giver god forbindelse til resten af Trekantområdet … og gør pendling realistisk, hvis du eller dine kunder kommer fra andre byer i området.

Book en fremvisning

Vil du opleve rammerne og stemningen selv?
Kontakt os i dag og book en uforpligtende fremvisning af kontorlokalet på Centervej

Se mere om vores andet kontorfællesskab i Kolding her

Depositum: 8550 kr.

Information og data

Dette kontorfællesskab ligger i Kolding. Kolding har postnummeret 6000, og ligger i kommunen Kolding, som ligger i Region Sydjylland.

Ofte stillede spørgsmål

Statistik over udviklingen i kontorfællesskaber til leje i Kolding over den sidste måned

Herunder ser du udviklingen i udbuddet og udlejningen af ledige kontorfællesskaber til leje i Kolding over den sidste måned. I den første kolonne ser du datoen. I den anden kolonne ser du det samlede antal kontorfællesskaber til leje i Kolding på datoen. I den tredje kolonne ser du antallet af nye kontorfællesskaber i Kolding der er udbudt til leje på datoen. I den fjerde kolonne ser du antallet af kontorfællesskaber i Kolding der er udlejet på datoen. Se også samlet statistik over alle udbudte kontorfællesskaber i Kolding over tid, samlet statistik over nye kontorfællesskaber i Kolding over tid, samlet statistik over udlejede kontorfællesskaber i Kolding over tid.

Dato Alle kontorfællesskaber til leje Nye kontorfællesskaber til leje Udlejede kontorfællesskaber
14. marts 2026 14 0 0
13. marts 2026 14 0 0
12. marts 2026 14 0 0
11. marts 2026 14 1 0
10. marts 2026 13 0 0
9. marts 2026 13 0 0
8. marts 2026 13 0 0
7. marts 2026 13 0 0
6. marts 2026 13 0 0
5. marts 2026 13 0 0
4. marts 2026 13 0 0
3. marts 2026 13 0 0
2. marts 2026 13 0 0
1. marts 2026 13 0 0
28. februar 2026 13 1 0
27. februar 2026 12 0 0
26. februar 2026 12 0 0
25. februar 2026 12 0 0
24. februar 2026 12 0 0
23. februar 2026 12 0 0
22. februar 2026 12 0 0
21. februar 2026 12 0 0
20. februar 2026 12 0 0
19. februar 2026 12 0 1
18. februar 2026 13 0 0
17. februar 2026 13 1 0
16. februar 2026 12 0 0
15. februar 2026 12 0 0
14. februar 2026 12 0 0
13. februar 2026 12 0 0
12. februar 2026 12 0 0

Statistik over udbuddet af kontorfællesskaber til leje i Kolding

I nedenstående tabel ser du en række data om udbuddet af kontorfællesskaber til leje i Kolding. Se også samlet statistik over alle udbudte kontorfællesskaber i Kolding over tid, samlet statistik over nye kontorfællesskaber i Kolding over tid, samlet statistik over udlejede kontorfællesskaber i Kolding over tid.

Kontorfællesskaber
Antal ledige lokaler 14
Antal nye lokaler siden i går 0
Antal udlejede lokaler siden i går 0
Ledige m2 i alt 3.120
Gennemsnitlig pris per m2 per år uden drift 0
Højeste m2-pris 0
Laveste m2-pris 0