Foto leveres af Google Street View og kan være upræcist:
Fri kontakt

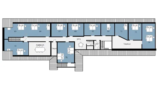
Kontorfællesskab til leje, Kolding, Vej ikke angivet

Vej ikke angivet, 6000 Kolding
  • Kontorfællesskab til leje
Kontorfællesskab til leje, Kolding, Vej ikke angivet
Vej ikke angivet, 6000 Kolding
  • Kontorfællesskab til leje
Få mere info om lokalet

⚡ Se alle oplysninger om lejemålet og få direkte adgang til udlejerens kontaktoplysninger.

Kontorfællesskab til leje, Kolding, Vej ikke angivet

Copenhagen Real Estate
Susanne Skouenborg
tlf: +45 30 20 45 07
Se email-adressexxxxxxxxxxxxxxxx

PRO-UDLEJER

Læs mere

Læs om udlejer

Fakta

Rapportér fejl
  • 281655
  • Kontorfællesskab
  • Ikke angivet

Ingen binding, kontor til 3.700 kr.

For kun 1.850 kr. per person kan du leje dit eget kontorlokale i Kolding! Det er det perfekte valg for dig, der søger en attraktiv og budgetvenlig løsning.

Her får du også:

All inclusive servicepakke: Med Copenhagen Real Estate's all inclusive servicepakke slipper du for bekymringer om ekstraomkostninger. Hos EasyOffice kontorfællesskaber dækker servicepakken el, vand, varme, internet og regelmæssig rengøring af fællesarealerne. Det betyder, at du kan fokusere udelukkende på din forretning og dine kunder uden at tænke på de praktiske detaljer, der normalt følger med et lejemål.

Centralt beliggende ved E45/E20 – Nem Adgang: Kontorfællesskabet på Centervej ligger let tilgængeligt lige ved motorvejsafkørsel E45/E20. Den smukke, herskabelige gård, som blev opført i 1916, er senere blevet ombygget til kontorformål. Mange af de fine detaljer fra fortiden er bevaret, men bygningerne fremstår samtidig i en nutidig og moderne stil. Bygningernes udformning og placering har gjort det muligt at skabe hyggelige og spændende kontormiljøer.

Moderne og hyggelige kontorfaciliteter: På centervej tilbyder vi moderne kontorer med plads til 1-5 arbejdspladser. I vores priser får du et privat, aflåseligt kontor samt adgang til mødelokaler, som let kan bookes online via vores portal. Mødelokalerne er udstyret med både whiteboard og flatscreen og kan også benyttes på vores andre lokationer. Udover det funktionelle tilbyder vi hyggelige fællesarealer med en afslappende lounge, et rummeligt spise- og køkkenområde, samt dejlige udearealer, hvor du og dine kollegaer kan nyde frokosten eller afholde uformelle møder i det fri. Disse fællesområder skaber en indbydende atmosfære, der fremmer både produktivitet og trivsel.

Fleksible lejekontrakter: Vi tilbyder fleksible lejekontrakter, hvor du selv bestemmer tidshorisonten. Du kan tilpasse lejeperioden efter dine behov uden at være bundet af lange kontrakter.

Gode tilkørselsforhold og gratis parkering: Ejendommen er synligt beliggende med gode tilkørselsforhold og tilbyder gratis parkering lige foran ejendommen med plads til ca. 50 biler.

Se mere om kontorfællesskabet her.

Depositum: 11400 kr.

Information og data

Dette kontorfællesskab ligger i Kolding. Kolding har postnummeret 6000, og ligger i kommunen Kolding, som ligger i Region Sydjylland.

Ofte stillede spørgsmål

Statistik over udviklingen i kontorfællesskaber til leje i Kolding over den sidste måned

Herunder ser du udviklingen i udbuddet og udlejningen af ledige kontorfællesskaber til leje i Kolding over den sidste måned. I den første kolonne ser du datoen. I den anden kolonne ser du det samlede antal kontorfællesskaber til leje i Kolding på datoen. I den tredje kolonne ser du antallet af nye kontorfællesskaber i Kolding der er udbudt til leje på datoen. I den fjerde kolonne ser du antallet af kontorfællesskaber i Kolding der er udlejet på datoen. Se også samlet statistik over alle udbudte kontorfællesskaber i Kolding over tid, samlet statistik over nye kontorfællesskaber i Kolding over tid, samlet statistik over udlejede kontorfællesskaber i Kolding over tid.

Dato Alle kontorfællesskaber til leje Nye kontorfællesskaber til leje Udlejede kontorfællesskaber
8. december 2025 10 0 0
7. december 2025 10 0 0
6. december 2025 10 0 0
5. december 2025 10 1 0
4. december 2025 9 0 0
3. december 2025 9 0 0
2. december 2025 9 0 0
1. december 2025 9 0 0
30. november 2025 9 0 0
29. november 2025 9 0 0
28. november 2025 9 0 0
27. november 2025 9 1 0
26. november 2025 8 0 0
25. november 2025 8 0 0
24. november 2025 8 0 0
23. november 2025 8 0 0
22. november 2025 8 1 0
21. november 2025 7 0 0
20. november 2025 7 0 0
19. november 2025 7 0 0
18. november 2025 7 0 0
17. november 2025 7 0 0
16. november 2025 7 0 0
15. november 2025 7 0 0
14. november 2025 7 0 0
13. november 2025 7 0 0
12. november 2025 7 0 0
11. november 2025 7 0 0
10. november 2025 7 0 0
9. november 2025 7 0 0
8. november 2025 7 0 0

Statistik over udbuddet af kontorfællesskaber til leje i Kolding

I nedenstående tabel ser du en række data om udbuddet af kontorfællesskaber til leje i Kolding. Se også samlet statistik over alle udbudte kontorfællesskaber i Kolding over tid, samlet statistik over nye kontorfællesskaber i Kolding over tid, samlet statistik over udlejede kontorfællesskaber i Kolding over tid.

Kontorfællesskaber
Antal ledige lokaler 12
Antal nye lokaler siden i går 0
Antal udlejede lokaler siden i går 0
Ledige m2 i alt 1.856
Gennemsnitlig pris per m2 per år uden drift 1.000
Højeste m2-pris 1.000
Laveste m2-pris 1.000