Foto leveres af Google Street View og kan være upræcist:
Fri kontakt

Kontor til leje, Århus C, Mejlgade

Mejlgade, 8000 Århus C
  • Kontor til leje
  • 197 m2
Kontor til leje, Århus C, Mejlgade
Mejlgade, 8000 Århus C
  • Kontor til leje
  • 197 m2
Få mere info om lokalet

⚡ Se alle oplysninger om lejemålet og få direkte adgang til udlejerens kontaktoplysninger.

Kontor til leje, Århus C, Mejlgade

Fakta

Rapportér fejl
  • 308245
  • Kontor
  • 197 m2
  • Ikke angivet
  • 1.200 kr.

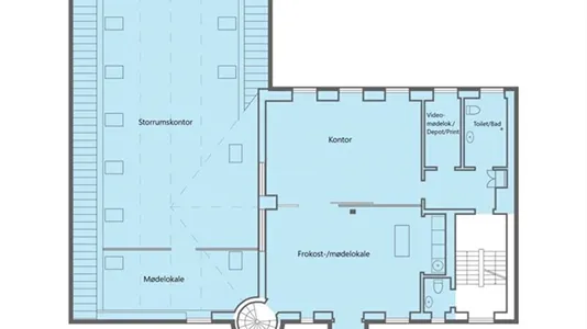
Charmerende og lyst kontor i hjertet af Aarhus

I smuk og rolig baggård i det stemningsfulde Latinerkvarter midt i Aarhus, tilbydes nu dette fine kontorlejemål. Lejemålet er placeret på 2. sal i ejendommens baghus og strækker sig videre ind i sidebygningens tagetage.
Her finder du entre med toilet/bad samt depot-/serverrum. Et stort lyst forkontor opdelt af glasvæg ind til kantine/frokoststue med køkken og fransk altan ud mod gården. Fra både frokoststue og forkontor ledes man ind i stort åbent og lyst kontorrum med skrå vægge og synlige bjælker samt et mindre mødelokale ligeledes inddelt i glas.
Der hører et ekstra toilet til lejemålet som entreres ude fra trappeopgangen. Vinduer mod 4 verdenshjørner, giver lejemålet et helt fantastisk lysindfald og lokalerne fremstår yderst præsentabel med sprossede vinduer, synlige bjælker og hvidmalede vægge, trægulve. I den charmerende brostensbelagt baggård kan man i sommermånederne nyde frokostpausen i solen ved de opsatte borde-/bænkesæt, som er til fri afbenyttelse for ejendommenes lejere. Her er ligeledes mulighed for at leje parkeringsplads i ejendommens gård. Atmosfæren og stemningen i Mejlgade er helt særlig. Gaden er i de seneste år blomstret op og huser en god blanding af beboelse og erhverv. Her er man er omgivet af butikker, gallerier og hyggelige caféer, kaffebarer og restauranter. Kontakt Tækker Real Estate for en fremvisning af lejemålet.

Information og data

Dette kontorlejemål, ligger i Århus C. Århus C har postnummeret 8000, og ligger i kommunen Aarhus, som ligger i Århus. Lokalet er i alt 197 m2.

Lignende lokaler

Ofte stillede spørgsmål

Statistik over udviklingen i kontorlokaler til leje i Århus C over den sidste måned

Herunder ser du udviklingen i udbuddet og udlejningen af ledige kontorlokaler til leje i Århus C over den sidste måned. I den første kolonne ser du datoen. I den anden kolonne ser du det samlede antal kontorlokaler til leje i Århus C på datoen. I den tredje kolonne ser du antallet af nye kontorlokaler i Århus C der er udbudt til leje på datoen. I den fjerde kolonne ser du antallet af kontorlokaler i Århus C der er udlejet på datoen. Se også samlet statistik over alle udbudte kontorlokaler i Århus C over tid, samlet statistik over nye kontorlokaler i Århus C over tid, samlet statistik over udlejede kontorlokaler i Århus C over tid.

Dato Alle kontorlokaler til leje Nye kontorlokaler til leje Udlejede kontorlokaler
14. november 2025 348 1 5
13. november 2025 352 5 0
12. november 2025 347 4 0
11. november 2025 343 0 1
10. november 2025 344 2 0
9. november 2025 342 0 2
8. november 2025 344 2 1
7. november 2025 343 4 4
6. november 2025 343 10 0
5. november 2025 333 19 3
4. november 2025 317 1 2
3. november 2025 318 3 0
2. november 2025 315 0 8
1. november 2025 323 12 0
31. oktober 2025 311 5 4
30. oktober 2025 310 3 0
29. oktober 2025 307 5 0
28. oktober 2025 302 9 4
27. oktober 2025 297 6 0
26. oktober 2025 291 0 0
25. oktober 2025 291 4 1
24. oktober 2025 288 2 2
23. oktober 2025 288 7 0
22. oktober 2025 281 1 0
21. oktober 2025 280 1 1
20. oktober 2025 280 1 0
19. oktober 2025 279 3 0
18. oktober 2025 276 10 0
17. oktober 2025 266 10 0
16. oktober 2025 256 51 5
15. oktober 2025 210 6 0

Statistik over udbuddet af kontorlokaler til leje i Århus C

I nedenstående tabel ser du en række data om udbuddet af kontorlokaler til leje i Århus C. Se også samlet statistik over alle udbudte kontorlokaler i Århus C over tid, samlet statistik over nye kontorlokaler i Århus C over tid, samlet statistik over udlejede kontorlokaler i Århus C over tid.

Kontorlokaler
Antal ledige lokaler 357
Antal nye lokaler siden i går 1
Antal udlejede lokaler siden i går 5
Ledige m2 i alt 225.142
Gennemsnitlig pris per m2 per år uden drift 2.460
Højeste m2-pris 142.536,09
Laveste m2-pris 28