Foto leveres af Google Street View og kan være upræcist:
Fri kontakt

Kontor til leje, Aulum, Holstebrovej

Holstebrovej, 7490 Aulum
  • Kontor til leje
  • 60 - 1.375 m2
  • 31.250 kr. per måned
Kontor til leje, Aulum, Holstebrovej
Holstebrovej, 7490 Aulum
  • Kontor til leje
  • 60 - 1.375 m2
  • 31.250 kr. per måned
Få mere info om lokalet

⚡ Se alle oplysninger om lejemålet og få direkte adgang til udlejerens kontaktoplysninger.

Kontor til leje, Aulum, Holstebrovej

Fakta

Rapportér fejl
  • 291305
  • Kontor
  • Lager
  • Kontorfællesskab
  • Ja
  • Ja
  • 60 - 1.375 m2
  • 272,72 kr.

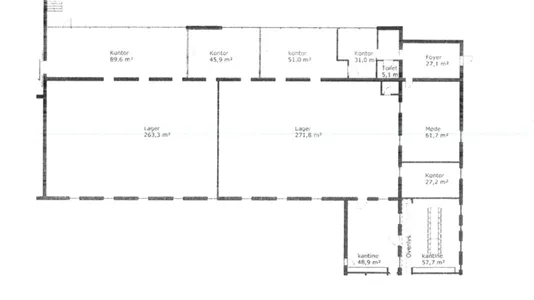
Attraktive kontor- og lagerlokaler til leje tæt på Holstebro-motorvejen i Aulum

Leder du efter lyse og rummelige kontorer kombineret med funktionelle lagerfaciliteter?
Disse fleksible lejemål i Aulum tilbyder ideelle rammer til både administration, logistik og lager med mulighed for at tilpasse og opdele lokalerne, så de passer til din virksomheds behov.

Ejendommen på Holstebrovej 1-3 er placeret i et veludbygget industriområde med nem adgang til motorvej 18, centralt mellem Holstebro og Herning.

Lokalerne byder blandt andet på:
• Stort, lyst showroom eller mødelokale med glaspartier
• Gode udearealer med parkeringspladser
• Fælles kantine
• Mulighed for pick & pack, distribution og lagerløsninger

Lejemålet kan anvendes som kontor, lager eller kontorfællesskab og har en samlet størrelse på op til 1.375 m².
Lokalerne kan opdeles efter behov – lejen for lager starter ved 250 kr. og for kontor ved 375 kr./m² ekskl. drift.

Services: Bredbånd, Eget firmaskilt ved hoveddør, Filserver adgang, Køkken/frokoststue, Lagerplads, Parkeringspladser

Information og data

Dette kontorlejemål, som alternativt kan anvendes til Lager eller Kontorfællesskab, ligger i Aulum. Aulum har postnummeret 7490, og ligger i kommunen Herning, som ligger i Region Midtjylland. Lokalet er i alt 1375 m2. Du kan leje dette kontorlokale for 375.000 kr. per år.

Lignende lokaler

Ofte stillede spørgsmål

Statistik over udviklingen i kontorlokaler til leje i Aulum over den sidste måned

Herunder ser du udviklingen i udbuddet og udlejningen af ledige kontorlokaler til leje i Aulum over den sidste måned. I den første kolonne ser du datoen. I den anden kolonne ser du det samlede antal kontorlokaler til leje i Aulum på datoen. I den tredje kolonne ser du antallet af nye kontorlokaler i Aulum der er udbudt til leje på datoen. I den fjerde kolonne ser du antallet af kontorlokaler i Aulum der er udlejet på datoen. Se også samlet statistik over alle udbudte kontorlokaler i Aulum over tid, samlet statistik over nye kontorlokaler i Aulum over tid, samlet statistik over udlejede kontorlokaler i Aulum over tid.

Dato Alle kontorlokaler til leje Nye kontorlokaler til leje Udlejede kontorlokaler
26. november 2025 3 0 0
25. november 2025 3 0 0
24. november 2025 3 0 0
23. november 2025 3 0 0
22. november 2025 3 0 0
21. november 2025 3 0 0
20. november 2025 3 0 0
19. november 2025 3 0 0
18. november 2025 3 0 0
17. november 2025 3 0 0
16. november 2025 3 0 0
15. november 2025 3 0 0
14. november 2025 3 0 0
13. november 2025 3 0 0
12. november 2025 3 0 0
11. november 2025 3 0 0
10. november 2025 3 0 0
9. november 2025 3 0 0
8. november 2025 3 0 0
7. november 2025 3 0 0
6. november 2025 3 0 0
5. november 2025 3 0 0
4. november 2025 3 0 0
3. november 2025 3 0 0
2. november 2025 3 0 0
1. november 2025 3 0 0
31. oktober 2025 3 0 0
30. oktober 2025 3 0 0
29. oktober 2025 3 0 0
28. oktober 2025 3 0 0
27. oktober 2025 3 0 0

Statistik over udbuddet af kontorlokaler til leje i Aulum

I nedenstående tabel ser du en række data om udbuddet af kontorlokaler til leje i Aulum. Se også samlet statistik over alle udbudte kontorlokaler i Aulum over tid, samlet statistik over nye kontorlokaler i Aulum over tid, samlet statistik over udlejede kontorlokaler i Aulum over tid.

Kontorlokaler
Antal ledige lokaler 3
Antal nye lokaler siden i går 0
Antal udlejede lokaler siden i går 0
Ledige m2 i alt 2.017
Gennemsnitlig pris per m2 per år uden drift 407
Højeste m2-pris 650
Laveste m2-pris 272,72