Foto leveres af Google Street View og kan være upræcist:

Kontor til leje, Århus C, Se vej-navn[xxxxxxxxxx]

Se vej-navn[xxxxxxxxxx], 8000 Århus C
  • Kontor til leje
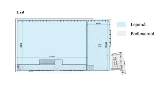
  • Ca. 585 m2
Kontor til leje, Århus C, <span class="blurred street" onclick="ProcessAdRequest(307656)"><span class="hint">Se vej-navn</span>[xxxxxxxxxx]</span>
Se vej-navn[xxxxxxxxxx], 8000 Århus C
  • Kontor til leje
  • Ca. 585 m2
Få mere info om lokalet

⚡Se alle oplysninger om lejemålet og få direkte adgang til udlejerens kontaktoplysninger.

Kontor til leje, Århus C, Se vej-navn[xxxxxxxxxx]

Fakta

Rapportér fejl
  • 307656
  • Kontor
  • Ca. 585 m2
  • Ikke angivet
  • Ca. 1.500 kr.

STENBROEN - Musik, kunst og kultur

Lejemål til teater, restaurant, spillested, kultur, idræt eller lignende – Arkitektskolens tidl. “Modelværksted” fremstår højloftet, lyst og rummelige i et industrielt look og består af et stort åbent rum med store ovenlysvinduer mod Kaløgade, samt en række mindre rum der ligger i direkte forbindelse til det store rum. Nogle af de mindre rum ligger med vinduer/udgang mod det bagvedliggende gårdrum. Endvidere er der adgang til fælles køkken- og toiletfaciliteter i lejemålet. Ejendommene Kaløgade 5-7 ligger attraktivt placeret i Nørre Stenbro Kvarteret. Bygningerne kommer til at danne rammerne for ønsket om at skabe nyt byliv i Nørre Stenbro Kvarteret – med café, musik, teater, dans, kunst, koncerter og meget mere. Her skabes et sted, hvor der er plads til at samle musik, kunst og kultur. Et kreativt, levende sted med plads til både store og små aktører – fra den udøvende kunstner til alle dem, der arbejder for, sammen med og rundt om. Ejendommene rummer muligheder for stor diversitet i både størrelse og anvendelse. Dette understøtter ønsket – og drømmen er at skabe et sted, hvor vækstlaget inden for kulturen smeltes sammen, med den mere etablerede del af branchen og de på den måde, kan drage nytte af hinanden. Som lejer i STENBROEN bliver man del af et nyt og nyskabende centrum for musik-, kunst-, film- og teaterkulturen i Aarhus – i inspirerende rammer. Ejendommene kommer til at rumme alt fra små øvelokaler, musikbutik og undervisning til helt traditionelle kontorlokaler – men fælles for lejerne vil være deres tilknytning til kulturbranchen. Vi ønsker at give mulighed for en sammensætning af lejere, der sammen kan skabe et community, hvor man føler sig motiveret og inspireret. Ønsker du at høre mere om mulighederne for leje af lokaler i ejendommene eller om området generelt, kan du kontakte os på tlf. [xxxxx]eller e-mail:

Information og data

Dette kontorlejemål, ligger i Århus C. Århus C har postnummeret 8000, og ligger i kommunen Aarhus, som ligger i Århus. Lokalet er i alt 583 m2.

Lignende lokaler

Ofte stillede spørgsmål

Statistik over udviklingen i kontorlokaler til leje i Århus C over den sidste måned

Herunder ser du udviklingen i udbuddet og udlejningen af ledige kontorlokaler til leje i Århus C over den sidste måned. I den første kolonne ser du datoen. I den anden kolonne ser du det samlede antal kontorlokaler til leje i Århus C på datoen. I den tredje kolonne ser du antallet af nye kontorlokaler i Århus C der er udbudt til leje på datoen. I den fjerde kolonne ser du antallet af kontorlokaler i Århus C der er udlejet på datoen. Se også samlet statistik over alle udbudte kontorlokaler i Århus C over tid, samlet statistik over nye kontorlokaler i Århus C over tid, samlet statistik over udlejede kontorlokaler i Århus C over tid.

Dato Alle kontorlokaler til leje Nye kontorlokaler til leje Udlejede kontorlokaler
3. februar 2026 290 6 13
2. februar 2026 297 0 0
1. februar 2026 297 0 0
31. januar 2026 297 5 4
30. januar 2026 296 2 6
28. januar 2026 300 6 51
27. januar 2026 345 5 0
26. januar 2026 340 0 1
25. januar 2026 341 1 0
24. januar 2026 340 0 1
23. januar 2026 341 4 0
22. januar 2026 337 4 0
21. januar 2026 333 4 5
20. januar 2026 334 1 2
19. januar 2026 335 0 0
18. januar 2026 335 6 0
17. januar 2026 329 2 1
16. januar 2026 328 1 3
15. januar 2026 330 3 1
14. januar 2026 328 4 0
13. januar 2026 324 1 8
12. januar 2026 331 2 0
11. januar 2026 329 1 2
10. januar 2026 330 1 0
9. januar 2026 329 2 4
8. januar 2026 331 18 18
7. januar 2026 331 2 2
6. januar 2026 331 0 2
5. januar 2026 333 4 0
4. januar 2026 329 0 0

Statistik over udbuddet af kontorlokaler til leje i Århus C

I nedenstående tabel ser du en række data om udbuddet af kontorlokaler til leje i Århus C. Se også samlet statistik over alle udbudte kontorlokaler i Århus C over tid, samlet statistik over nye kontorlokaler i Århus C over tid, samlet statistik over udlejede kontorlokaler i Århus C over tid.

Kontorlokaler
Antal ledige lokaler 297
Antal nye lokaler siden i går 6
Antal udlejede lokaler siden i går 13
Ledige m2 i alt 213.516
Gennemsnitlig pris per m2 per år uden drift 1.707
Højeste m2-pris 70.953,44
Laveste m2-pris 98