Klinik til leje, Valby, Mosedalvej 11-13
Mosedalvej 11-13, 2500 Valby- Klinik til leje
- 300 - 692 m2
Klinik til leje, Valby, Mosedalvej 11-13
Fakta
Rapportér fejl- 293481
- Klinik
- Showroom
- Kontor
- 300 - 692 m2
- 761.200 kr.
- 63.433 kr.
- 1.100 kr.
- 2
- 3 Pladser
- 40
Centralt lejemål til kontor, klinik eller kreative erhverv i pulserende kvarter
Forslag til lejer: Skønhedssalon, negleklinik, fysioterapi eller lign. Det er muligt at leje lokaler separat med fællesarealer. Billeder er vejledende
Det vil være muligt at anvende PureGyms fitnesscenter og faciliteter.
Gode vilkår tilbydes til lejer!
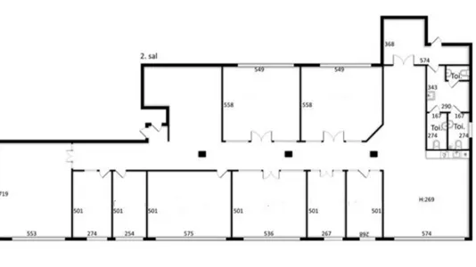
Vi udbyder et unikt og repræsentativt kontorlejemål på i alt 692 m², fordelt på 2. og 3. sal, med direkte adgang til en privat tagterrasse. Lejemålet er udført i en moderne, industrielt inspireret stil, der kombinerer åbne kontorområder med Newyorker-vægge mod møde- og kontorlokaler, hvilket skaber en lys og åben atmosfære.
Kontoret er elegant indrettet med eksponerede betonsøjler og bjælker, som tilfører et råt, men samtidig moderne udtryk. Det robuste epoxygulv bidrager til både holdbarhed og et stilrent design. På 2. sal findes toiletter samt et funktionelt tekøkken, mens 3. sal ligeledes er udstyret med et tekøkken, hvilket sikrer optimale faciliteter for medarbejderne uden behov for at forlade kontoret.
Information og data
Dette kliniklejemål, som alternativt kan anvendes til Showroom eller Kontor, ligger i Valby. Valby har postnummeret 2500, og ligger i kommunen København, som ligger i København. Lokalet er i alt 692 m2. 2 parkeringspladser medfølger.
Lignende lokaler
-
87 m2 kontor til leje i 2500 Valby
Fri kontakt- 14.911 kr. per måned
- 2.056,68 kr/m2/år
Ofte stillede spørgsmål
Statistik over udviklingen i kliniklokaler til leje i Valby over den sidste måned
Herunder ser du udviklingen i udbuddet og udlejningen af ledige kliniklokaler til leje i Valby over den sidste måned. I den første kolonne ser du datoen. I den anden kolonne ser du det samlede antal kliniklokaler til leje i Valby på datoen. I den tredje kolonne ser du antallet af nye kliniklokaler i Valby der er udbudt til leje på datoen. I den fjerde kolonne ser du antallet af kliniklokaler i Valby der er udlejet på datoen. Se også samlet statistik over alle udbudte kliniklokaler i Valby over tid, samlet statistik over nye kliniklokaler i Valby over tid, samlet statistik over udlejede kliniklokaler i Valby over tid.
| Dato | Alle kliniklokaler til leje | Nye kliniklokaler til leje | Udlejede kliniklokaler |
|---|---|---|---|
| 24. oktober 2025 | 9 | 0 | 0 |
| 23. oktober 2025 | 9 | 0 | 0 |
| 22. oktober 2025 | 9 | 0 | 0 |
| 21. oktober 2025 | 9 | 0 | 0 |
| 20. oktober 2025 | 9 | 0 | 0 |
| 19. oktober 2025 | 9 | 0 | 0 |
| 18. oktober 2025 | 9 | 0 | 0 |
| 17. oktober 2025 | 9 | 0 | 0 |
| 16. oktober 2025 | 9 | 0 | 0 |
| 15. oktober 2025 | 9 | 0 | 0 |
| 14. oktober 2025 | 9 | 0 | 0 |
| 13. oktober 2025 | 9 | 0 | 0 |
| 12. oktober 2025 | 9 | 0 | 0 |
| 11. oktober 2025 | 9 | 0 | 0 |
| 10. oktober 2025 | 9 | 0 | 0 |
| 9. oktober 2025 | 9 | 0 | 0 |
| 8. oktober 2025 | 9 | 4 | 0 |
| 7. oktober 2025 | 5 | 0 | 0 |
| 6. oktober 2025 | 5 | 0 | 0 |
| 5. oktober 2025 | 5 | 0 | 0 |
| 4. oktober 2025 | 5 | 0 | 0 |
| 3. oktober 2025 | 5 | 0 | 0 |
| 2. oktober 2025 | 5 | 0 | 0 |
| 1. oktober 2025 | 5 | 0 | 0 |
| 30. september 2025 | 5 | 0 | 0 |
| 29. september 2025 | 5 | 0 | 0 |
| 28. september 2025 | 5 | 0 | 0 |
| 27. september 2025 | 5 | 0 | 0 |
| 26. september 2025 | 5 | 0 | 0 |
| 25. september 2025 | 5 | 0 | 1 |
| 24. september 2025 | 6 | 0 | 0 |
Statistik over udbuddet af kliniklokaler til leje i Valby
I nedenstående tabel ser du en række data om udbuddet af kliniklokaler til leje i Valby. Se også samlet statistik over alle udbudte kliniklokaler i Valby over tid, samlet statistik over nye kliniklokaler i Valby over tid, samlet statistik over udlejede kliniklokaler i Valby over tid.
| Kliniklokaler | |
|---|---|
| Antal ledige lokaler | 10 |
| Antal nye lokaler siden i går | 0 |
| Antal udlejede lokaler siden i går | 0 |
| Ledige m2 i alt | 1.281 |
| Gennemsnitlig pris per m2 per år uden drift | 1.999 |
| Højeste m2-pris | 3.750 |
| Laveste m2-pris | 288,88 |