Klinik til leje, Randers C, Vestergade
Vestergade, 8900 Randers C- Klinik til leje
- 19 m2
- 5.700 kr. per måned
- Klinik til leje
- 19 m2
- 5.700 kr. per måned
⚡ Se alle oplysninger om lejemålet og få direkte adgang til udlejerens kontaktoplysninger.
Klinik til leje, Randers C, Vestergade
Vestergade 12, Klinikfællesskab – med parkeringsmulighed lige ved døren i Randers
Alt er inkluderet i lejen: Hos Copenhagen Real Estate har vi fokus på lejerens behov. I EasyClinics klinikfællesskab tager vi os af det praktiske, så du kan fokusere på din faglighed og dine klienter. Lejen dækker blandt andet internet, el, vand, varme og rengøring af de fælles arealer – alt samlet i én månedlig pris.
Central beliggenhed i Randers – med parkering lige ved døren: Vi ved, hvor vigtigt det er, at både du og dine klienter nemt kan komme frem. EasyClinic er centralt placeret med let adgang for alle – uanset om man kommer til fods, med offentlig transport eller i bil. Der er mulighed for parkering lige ved ejendommen, så både du og dine klienter får en enkel og behagelig ankomst.
Moderne lokaler i professionelle rammer: De nyrenoverede lokaler er klar til indflytning og skaber en rolig og professionel atmosfære. Du får dit eget aflåselige rum samt adgang til fælles faciliteter som venteværelse, køkken og toilet – alt sammen indrettet med fokus på komfort og funktionalitet.
Fleksible lejevilkår uden binding: Du vælger selv, hvor længe du ønsker at leje. Vores fleksible kontrakter betyder, at du ikke er bundet af lange aftaler – du får frihed og tryghed i én og samme løsning.
Depositum: 17100 kr.
Information og data
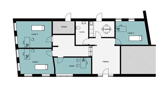
Dette kliniklejemål ligger i Randers C. Randers C har postnummeret 8900, og ligger i kommunen Randers, som ligger i Randers. Lokalet er i alt 19 m2. Du kan leje dette kliniklokale for 68.400 kr. per år.
Lignende lokaler
-
Klinik til leje i 8900 Randers C
Fri kontakt- 2.900 kr. per måned
-
Klinik til leje i 8900 Randers C
Fri kontakt- 3.550 kr. per måned
-
Klinik til leje i 8900 Randers C
Fri kontakt- 2.400 kr. per måned
-
Klinik til leje i 8900 Randers C
Fri kontakt- 3.300 kr. per måned
-
163 m2 klinik til leje i 8900 Randers C, Vestergade
Fri kontakt- 4.000 kr. per måned
- 294,48 kr/m2/år
Ofte stillede spørgsmål
Statistik over udviklingen i kliniklokaler til leje i Randers C over den sidste måned
Herunder ser du udviklingen i udbuddet og udlejningen af ledige kliniklokaler til leje i Randers C over den sidste måned. I den første kolonne ser du datoen. I den anden kolonne ser du det samlede antal kliniklokaler til leje i Randers C på datoen. I den tredje kolonne ser du antallet af nye kliniklokaler i Randers C der er udbudt til leje på datoen. I den fjerde kolonne ser du antallet af kliniklokaler i Randers C der er udlejet på datoen. Se også samlet statistik over alle udbudte kliniklokaler i Randers C over tid, samlet statistik over nye kliniklokaler i Randers C over tid, samlet statistik over udlejede kliniklokaler i Randers C over tid.
| Dato | Alle kliniklokaler til leje | Nye kliniklokaler til leje | Udlejede kliniklokaler |
|---|---|---|---|
| 27. februar 2026 | 8 | 0 | 0 |
| 26. februar 2026 | 8 | 0 | 0 |
| 25. februar 2026 | 8 | 0 | 0 |
| 24. februar 2026 | 8 | 0 | 0 |
| 23. februar 2026 | 8 | 0 | 0 |
| 22. februar 2026 | 8 | 0 | 0 |
| 21. februar 2026 | 8 | 0 | 0 |
| 20. februar 2026 | 8 | 0 | 0 |
| 19. februar 2026 | 8 | 0 | 0 |
| 18. februar 2026 | 8 | 0 | 0 |
| 17. februar 2026 | 8 | 1 | 0 |
| 16. februar 2026 | 7 | 0 | 0 |
| 15. februar 2026 | 7 | 0 | 0 |
| 14. februar 2026 | 7 | 0 | 0 |
| 13. februar 2026 | 7 | 0 | 0 |
| 12. februar 2026 | 7 | 0 | 0 |
| 11. februar 2026 | 7 | 0 | 0 |
| 10. februar 2026 | 7 | 0 | 0 |
| 9. februar 2026 | 7 | 0 | 0 |
| 8. februar 2026 | 7 | 0 | 0 |
| 7. februar 2026 | 7 | 0 | 0 |
| 6. februar 2026 | 7 | 0 | 0 |
| 5. februar 2026 | 7 | 0 | 0 |
| 4. februar 2026 | 7 | 0 | 0 |
| 3. februar 2026 | 7 | 0 | 0 |
| 2. februar 2026 | 7 | 0 | 0 |
| 1. februar 2026 | 7 | 0 | 0 |
| 31. januar 2026 | 7 | 1 | 0 |
| 30. januar 2026 | 6 | 0 | 0 |
| 28. januar 2026 | 6 | 0 | 0 |
Statistik over udbuddet af kliniklokaler til leje i Randers C
I nedenstående tabel ser du en række data om udbuddet af kliniklokaler til leje i Randers C. Se også samlet statistik over alle udbudte kliniklokaler i Randers C over tid, samlet statistik over nye kliniklokaler i Randers C over tid, samlet statistik over udlejede kliniklokaler i Randers C over tid.
| Kliniklokaler | |
|---|---|
| Antal ledige lokaler | 9 |
| Antal nye lokaler siden i går | 0 |
| Antal udlejede lokaler siden i går | 0 |
| Ledige m2 i alt | 1.322 |
| Gennemsnitlig pris per m2 per år uden drift | 1.394 |
| Højeste m2-pris | 3.600 |
| Laveste m2-pris | 294,48 |