Erhvervslokaler til leje, Sakskøbing, Sukkerfabrikken
Sukkerfabrikken, 4990 Sakskøbing- Erhvervslokaler til leje
- 500 - 2.880 m2
- 60.000 kr. per måned
- Erhvervslokaler til leje
- 500 - 2.880 m2
- 60.000 kr. per måned
⚡ Se alle oplysninger om lejemålet og få direkte adgang til udlejerens kontaktoplysninger.
Erhvervslokaler til leje, Sakskøbing, Sukkerfabrikken
Unikke kontor, produktions- og lagerlokaler
Kontakt os via mail eller telefon.
Information og data
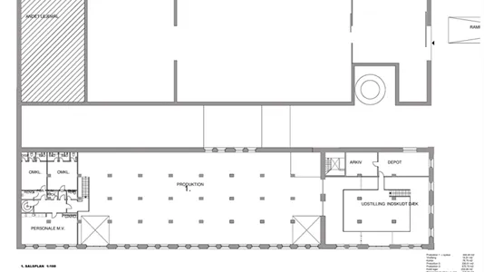
Dette erhvervslejemål, som kan anvendes til Erhvervslokaler, ligger i Sakskøbing. Sakskøbing har postnummeret 4990, og ligger i kommunen Guldborgsund, som ligger på Region Sjælland. Lokalet er i alt 2880 m2. Du kan leje dette lokale for 720.000 kr. per år. 20 parkeringspladser medfølger.
Lignende lokaler
-
574 m2 ejendom til salg i 4990 Sakskøbing
- 2,66%
- Ca. 5.000.000 kr.
-
94 m2 ejendom til salg i 4880 Nysted
- 9,64%
- Ca. 1.500.000 kr.
-
574 m2 ejendom til salg i 4930 Maribo
- 8,61%
- Ca. 2.980.000 kr.
-
665 m2 ejendom til salg i 4892 Kettinge
- 9,57%
- 522.000 kr.
- Ca. 5.000.000 kr.
-
500 m2 værksted til leje i 4990 Sakskøbing
- 12.500 kr. per måned
- 300 kr/m2/år
Ofte stillede spørgsmål
Statistik over udviklingen i erhvervslejemål til leje i Sakskøbing over den sidste måned
Herunder ser du udviklingen i udbuddet og udlejningen af ledige erhvervslejemål til leje i Sakskøbing over den sidste måned. I den første kolonne ser du datoen. I den anden kolonne ser du det samlede antal erhvervslejemål til leje i Sakskøbing på datoen. I den tredje kolonne ser du antallet af nye erhvervslejemål i Sakskøbing der er udbudt til leje på datoen. I den fjerde kolonne ser du antallet af erhvervslejemål i Sakskøbing der er udlejet på datoen. Se også samlet statistik over alle udbudte erhvervslejemål i Sakskøbing over tid, samlet statistik over nye erhvervslejemål i Sakskøbing over tid, samlet statistik over udlejede erhvervslejemål i Sakskøbing over tid.
| Dato | Alle erhvervslejemål til leje | Nye erhvervslejemål til leje | Udlejede erhvervslejemål |
|---|---|---|---|
| 23. januar 2026 | 1 | 0 | 0 |
| 22. januar 2026 | 1 | 0 | 0 |
| 21. januar 2026 | 1 | 0 | 0 |
| 20. januar 2026 | 1 | 0 | 0 |
| 19. januar 2026 | 1 | 0 | 0 |
| 18. januar 2026 | 1 | 0 | 0 |
| 17. januar 2026 | 1 | 0 | 0 |
| 16. januar 2026 | 1 | 0 | 0 |
| 15. januar 2026 | 1 | 0 | 0 |
| 14. januar 2026 | 1 | 0 | 0 |
| 13. januar 2026 | 1 | 0 | 0 |
| 12. januar 2026 | 1 | 0 | 0 |
| 11. januar 2026 | 1 | 0 | 0 |
| 10. januar 2026 | 1 | 0 | 0 |
| 9. januar 2026 | 1 | 0 | 0 |
| 8. januar 2026 | 1 | 0 | 0 |
| 7. januar 2026 | 1 | 0 | 0 |
| 6. januar 2026 | 1 | 0 | 0 |
| 5. januar 2026 | 1 | 0 | 0 |
| 4. januar 2026 | 1 | 0 | 0 |
| 3. januar 2026 | 1 | 0 | 0 |
| 2. januar 2026 | 1 | 0 | 0 |
| 1. januar 2026 | 1 | 0 | 0 |
| 31. december 2025 | 1 | 0 | 0 |
| 30. december 2025 | 1 | 0 | 0 |
| 29. december 2025 | 1 | 0 | 0 |
| 28. december 2025 | 1 | 0 | 0 |
| 27. december 2025 | 1 | 0 | 0 |
| 26. december 2025 | 1 | 0 | 0 |
| 25. december 2025 | 1 | 0 | 0 |
| 24. december 2025 | 1 | 0 | 0 |
Statistik over udbuddet af erhvervslejemål til leje i Sakskøbing
I nedenstående tabel ser du en række data om udbuddet af erhvervslejemål til leje i Sakskøbing. Se også samlet statistik over alle udbudte erhvervslejemål i Sakskøbing over tid, samlet statistik over nye erhvervslejemål i Sakskøbing over tid, samlet statistik over udlejede erhvervslejemål i Sakskøbing over tid.
| Erhvervslejemål | |
|---|---|
| Antal ledige lokaler | 1 |
| Antal nye lokaler siden i går | 0 |
| Antal udlejede lokaler siden i går | 0 |
| Ledige m2 i alt | 2.880 |
| Gennemsnitlig pris per m2 per år uden drift | 250 |
| Højeste m2-pris | 250 |
| Laveste m2-pris | 250 |