Ejendom til salg, Fredericia, Thorsvej
Thorsvej, 7000 Fredericia- Ejendom til salg
- 100 m2
- 1.650.000 kr.
- Ejendom til salg
- 100 m2
- 1.650.000 kr.
⚡ Se alle oplysninger om ejendommen og få direkte adgang til sælgerens kontaktoplysninger.
Ejendom til salg, Fredericia, Thorsvej
Ejendom til salg i 7000 Fredericia
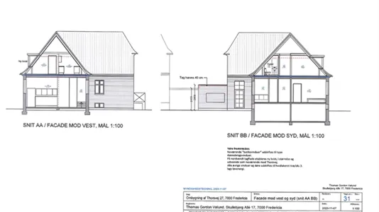
Ejendommen er oplagt som et mindre projektudvikling, hvilket fremhæves af det forberedende arbejde udført af den nuværende ejer. Der medfølger arkitekttegninger, byggetilladelse og brandrapport til udvikling af en 2 nye boliglejligheder i stueetagen, som vil erstatte de nuværende lejemål i ejendommen.
Ejendommens beliggenhed gør den især velegnet til udvikling af en lejligheder på grund af dens centrale placering i Fredericia. Desuden vil de kommende lejligheder i stueetagen og på første sal have fordel af en sydvendt beliggenhed med udsigt til den smukke, nyanlagte fælleshave.
Der er givet byggetilladelse jf. BR-18 til etablering af 2 boliger på henholdsvis 111 m2 (Stueplan/tidligere erhverv) og 107 m2 (St & 1.sal - Eksisterende bolig) med tilhørende depotrum i kælderen.
Aktuel anvendelse:
I øjeblikket omfatter ejendommen en boliglejlighed på 100 m² beliggende på første sal. Derudover består ejendommen af et 102 m² værksted og et 57 m² butikslokale. Erhvervslokalerne er i dag udlejet til en stabil lejer, en låsesmed, som har holdt til i ejendommen siden 2013. Låsesmeden i erhvervslokalerne har 3 måneders opsigelse.
Du er altid velkommen til at ringe til på telefonfor mere information.
Information og data
Denne erhvervsejendom til salg ligger i Fredericia. Fredericia har postnummeret 7000, og ligger i kommunen Fredericia, som ligger i Region Sydjylland. Ejendommen er i alt 100 m2. Salgsprisen for ejendommen er 1.650.000 kr.
Lignende lokaler
-
599 m2 erhvervslokaler til leje i 6000 Kolding, Neptunvej
Fri kontakt- 14.000 kr. per måned
- 280,47 kr/m2/år
-
200 m2 erhvervslokaler til leje i 7000 Fredericia
Fri kontakt- 11.050 kr. per måned
- 663 kr/m2/år
Ofte stillede spørgsmål
Statistik over udviklingen i ejendomme til salg i Fredericia over den sidste måned
Herunder ser du udviklingen i udbuddet af ejendomme til salg i Fredericia over den sidste måned. I den første kolonne ser du datoen. I den anden kolonne ser du det samlede antal ejendomme til salg i Fredericia på datoen. I den tredje kolonne ser du antallet af nye ejendomme i Fredericia der er udbudt til salg på datoen. I den fjerde kolonne ser du antallet af ejendomme i Fredericia der er solgt på datoen. Se også samlet statistik over alle udbudte ejendomme til salg i Fredericia over tid, samlet statistik over nye erhvervslejemål til salg i Fredericia over tid, samlet statistik over solgte ejendomme i Fredericia over tid.
| Dato | Alle ejendomme til salg | Nye ejendomme til salg | Solgte ejendomme |
|---|---|---|---|
| 9. december 2025 | 21 | 0 | 0 |
| 8. december 2025 | 21 | 0 | 0 |
| 7. december 2025 | 21 | 0 | 0 |
| 6. december 2025 | 21 | 0 | 0 |
| 5. december 2025 | 21 | 0 | 0 |
| 4. december 2025 | 21 | 1 | 0 |
| 3. december 2025 | 20 | 0 | 0 |
| 2. december 2025 | 20 | 0 | 0 |
| 1. december 2025 | 20 | 0 | 1 |
| 30. november 2025 | 21 | 0 | 0 |
| 29. november 2025 | 21 | 0 | 0 |
| 28. november 2025 | 21 | 1 | 0 |
| 27. november 2025 | 20 | 1 | 0 |
| 26. november 2025 | 19 | 0 | 0 |
| 25. november 2025 | 19 | 0 | 0 |
| 24. november 2025 | 19 | 0 | 1 |
| 23. november 2025 | 20 | 0 | 0 |
| 22. november 2025 | 20 | 0 | 0 |
| 21. november 2025 | 20 | 0 | 0 |
| 20. november 2025 | 20 | 0 | 1 |
| 19. november 2025 | 21 | 0 | 0 |
| 18. november 2025 | 21 | 1 | 0 |
| 17. november 2025 | 20 | 0 | 0 |
| 16. november 2025 | 20 | 0 | 0 |
| 15. november 2025 | 20 | 0 | 1 |
| 14. november 2025 | 21 | 0 | 0 |
| 13. november 2025 | 21 | 0 | 0 |
| 12. november 2025 | 21 | 0 | 0 |
| 11. november 2025 | 21 | 0 | 0 |
| 10. november 2025 | 21 | 0 | 0 |
| 9. november 2025 | 21 | 0 | 0 |
Statistik over udbuddet af ejendomme til salg i Fredericia
I nedenstående tabel ser du en række data om udbuddet af ejendomme til salg i Fredericia. Se også samlet statistik over alle udbudte ejendomme til salg i Fredericia over tid, samlet statistik over nye erhvervslejemål til salg i Fredericia over tid, samlet statistik over solgte ejendomme i Fredericia over tid.
| Erhvervslejemål | |
|---|---|
| Antal ledige lokaler | 21 |
| Antal nye lokaler siden i går | 0 |
| Antal solgte lokaler siden i går | 0 |
| Ledige m2 i alt | 30.969 |
| Gennemsnitlig pris per m2 per år uden drift | 6.094 |