Butik til leje, Kolding, Klostergade
Klostergade, 6000 Kolding- Butik til leje
- 114 m2
- 10.659 kr. per måned
- Butik til leje
- 114 m2
- 10.659 kr. per måned
⚡Se alle oplysninger om lejemålet og få direkte adgang til udlejerens kontaktoplysninger.
Butik til leje, Kolding, Klostergade
Butik til leje i 6000 Kolding
Byforskønnelsesprojektet har været medvirkende til at styrke bymidtens identitet, med fokus på at integrere bydesign, arkitektur og bæredygtige løsninger.
I området har der ligeledes været fokus på at forbedre trafikflowet samt skabe mere plads til udeservicering.
De nye bymidterammer indbyder til byliv og et samlingspunkt for restauranter, specialforretninger, cafeér mv.
Lejemålet Klostergade 2, st. tv., Kolding byder, udover en meget attraktiv beliggenhed, også på nogle moderne og indbydende rammer, med eksempelvis store facadevinduer direkte ud mod Klostergade.
De mange og store facadevinduer gør lejemålet velegnet til udstilling af varer og sikrer dig en god synlighed.
Lejemålet har senest været anvendt som isbutik inklusiv eget produktionskøkken.
Lokalerne henvender sig derfor yderst godt til både en traditionel butik eller restaurant/café.
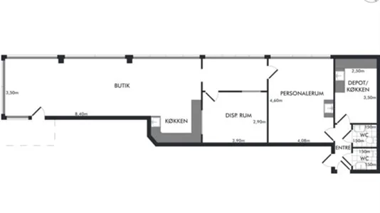
Lejemålet er indrettet med et stort regulært lokale med gode facadevinduer, baglokale/personalerum, køkken og toilet. Endvidere er der stort depot/lager i kælderen på 32 m².
Der er parkeringsmulighed i parkeringskælderen, Klostergaarden, som er beliggende i gåafstand til lejemålet.
Er du på udkig efter et flot og velbeliggende lejemål i et attraktivt område ved Kolding gågade, så er Klostergade 2, st. tv. et besøg værd.
Information og data
Dette butikslejemål, som alternativt kan anvendes til Restaurant eller Klinik, ligger i Kolding. Kolding har postnummeret 6000, og ligger i kommunen Kolding, som ligger i Region Sydjylland. Lokalet er i alt 114 m2. Du kan leje dette butikslokale for 127.908 kr. per år.
Lignende lokaler
-
60 m2 klinik & butik & kontor til leje i 6000 Kolding, Haderslevvej
Fri kontakt- 5.650 kr. per måned
- 1.130 kr/m2/år
-
1790 m2 butik til leje i 7000 Fredericia
- 59.667 kr. per måned
- 400 kr/m2/år
-
1325 m2 butik til leje i 7000 Fredericia
- 71.771 kr. per måned
- 650 kr/m2/år
Ofte stillede spørgsmål
Statistik over udviklingen i butikslokaler til leje i Kolding over den sidste måned
Herunder ser du udviklingen i udbuddet og udlejningen af ledige butikslokaler til leje i Kolding over den sidste måned. I den første kolonne ser du datoen. I den anden kolonne ser du det samlede antal butikslokaler til leje i Kolding på datoen. I den tredje kolonne ser du antallet af nye butikslokaler i Kolding der er udbudt til leje på datoen. I den fjerde kolonne ser du antallet af butikslokaler i Kolding der er udlejet på datoen. Se også samlet statistik over alle udbudte butikslokaler i Kolding over tid, samlet statistik over nye butikslokaler i Kolding over tid, samlet statistik over udlejede butikslokaler i Kolding over tid.
| Dato | Alle butikslokaler til leje | Nye butikslokaler til leje | Udlejede butikslokaler |
|---|---|---|---|
| 11. december 2025 | 55 | 1 | 0 |
| 10. december 2025 | 54 | 0 | 0 |
| 9. december 2025 | 54 | 2 | 0 |
| 8. december 2025 | 52 | 0 | 2 |
| 7. december 2025 | 54 | 0 | 0 |
| 6. december 2025 | 54 | 0 | 0 |
| 5. december 2025 | 54 | 1 | 0 |
| 4. december 2025 | 53 | 0 | 0 |
| 3. december 2025 | 53 | 1 | 0 |
| 2. december 2025 | 52 | 0 | 1 |
| 1. december 2025 | 53 | 0 | 0 |
| 30. november 2025 | 53 | 1 | 0 |
| 29. november 2025 | 52 | 0 | 1 |
| 28. november 2025 | 53 | 0 | 0 |
| 27. november 2025 | 53 | 0 | 0 |
| 26. november 2025 | 53 | 0 | 0 |
| 25. november 2025 | 53 | 0 | 0 |
| 24. november 2025 | 53 | 0 | 0 |
| 23. november 2025 | 53 | 0 | 0 |
| 22. november 2025 | 53 | 0 | 0 |
| 21. november 2025 | 53 | 1 | 0 |
| 20. november 2025 | 52 | 0 | 1 |
| 19. november 2025 | 53 | 0 | 0 |
| 18. november 2025 | 53 | 2 | 0 |
| 17. november 2025 | 51 | 0 | 1 |
| 16. november 2025 | 52 | 0 | 0 |
| 15. november 2025 | 52 | 0 | 0 |
| 14. november 2025 | 52 | 0 | 1 |
| 13. november 2025 | 53 | 0 | 0 |
| 12. november 2025 | 53 | 0 | 0 |
| 11. november 2025 | 53 | 0 | 0 |
Statistik over udbuddet af butikslokaler til leje i Kolding
I nedenstående tabel ser du en række data om udbuddet af butikslokaler til leje i Kolding. Se også samlet statistik over alle udbudte butikslokaler i Kolding over tid, samlet statistik over nye butikslokaler i Kolding over tid, samlet statistik over udlejede butikslokaler i Kolding over tid.
| Butikslokaler | |
|---|---|
| Antal ledige lokaler | 56 |
| Antal nye lokaler siden i går | 1 |
| Antal udlejede lokaler siden i går | 0 |
| Ledige m2 i alt | 25.452 |
| Gennemsnitlig pris per m2 per år uden drift | 1.464 |
| Højeste m2-pris | 21.810,34 |
| Laveste m2-pris | 400 |