Foto leveres af Google Street View og kan være upræcist:
Fri kontakt

Kontor til leje, København S, Strandlodsvej 30

Strandlodsvej 30, 2300 København S
  • Kontor til leje
  • 1.474 m2
Kontor til leje, København S, Strandlodsvej 30
Strandlodsvej 30, 2300 København S
  • Kontor til leje
  • 1.474 m2
Få mere info om lokalet

⚡ Se alle oplysninger om lejemålet og få direkte adgang til udlejerens kontaktoplysninger.

Kontor til leje, København S, Strandlodsvej 30

Byggeselskab Mogens de Linde
Lisa de Linde
tlf: 26 77 11 22
Se email-adressexxxxxxxxxxxxxxxx

PRO-UDLEJER

Læs mere

Læs om udlejer

Fakta

Rapportér fejl
  • 317394
  • Kontor
  • 1.474 m2
  • Ikke angivet
  • 1.200 kr.

Strandlodsvej 30, 2300 København S

Ejendommen på Strandlodsvej 30 har gennem de seneste år fungeret som domicil for Viaplay. Nu udbydes 1. salen med et samlet areal på 1.474 m² til leje. Hvis ønsket kan lejemålet udvides med yderligere 300 m². Som lejer bliver I en del af et lyst og velfungerende kontormiljø med adgang til fælles faciliteter såsom kantine, reception og mødelokaler samt tilhørende parkering. Ejendommen ligger i et blomstrende kvarter på Amagerbro tæt på grønne byrum, caféer og strand. Lejemålet henvender sig til virksomheder, der ønsker en central placering med nem adgang tilIndre By, Københavns Lufthavn og motorvejen.

Området

Nærmiljøet byder på en blanding af moderne boliger, kontorer og lokale caféer. De grønne byrum som Amager Strandpark og Kløvermarken giver gode rammer for en Walk 'n Talk. Mulighederne for motion og sportsaktiviteter inden eller efter arbejde er ganske fordelagtige med flere nærliggende fitnesscentre og padelbaner i naboejendommen. Den offentlige transport er ligeledes i top, med både Øresund Metrostation og Lergravsparken Metrostation inden for kort gåafstand. Herfra er der hurtig forbindelse til Indre By, Cityringen og Københavns Lufthavn, og flere buslinjer betjener området. Via supercykelstien er der kun 3 km til Kongens Nytorv, og for dem, der ankommer i bil, kan parkeringsplads på lejemålets område tillejes.

Ejendommen

Bygningen er opført i 1958 og har gennem årene været en vigtig del af områdets erhvervskarakter - og er det fortsat i dag, hvor stueetagen af ejendommen danner ramme om Viaplays danske hovedkontor. Nabobygningen på Jenagade 22 har huseret store produktionsselskaber som Metronome og Studios, mens Viasat/Allente fortsat bidrager til medie- og studieproduktionen i området. Ejendommen fremstår velholdt og tilbyder en række attraktive fællesfaciliteter, der skaber komfort og fleksibilitet for lejerne, herunder en fælles kantine og reception i stueetagen samt fem fælles mødelokaler med AV-udstyr til interne møder og kundearrangementer.

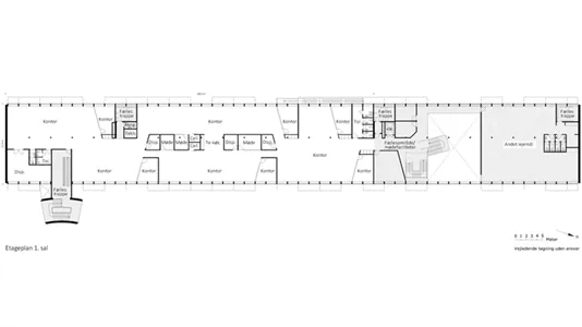
Lejemålet

Lejemålet på 1.474 m² er gennemlyst fra to sider, hvilket giver gode muligheder for en effektiv og fleksibel indretning med arbejdspladser langs begge facader. Planløsningen kombinerer åbne kontorområder med mødelokaler, så arealet kan opdeles i funktionelle arbejdszoner. Lejemålet istandsættes inden overtagelse og vil blandt andet blive opgraderet med ny LED-belysning integreret i loftsplader samt en ny gulvløsning, som lejer selv kan have indflydelse på.

Fra landbrug og råt fabriksland til moderne byliv

Strandlodsvej på det østlige Amager i København fortæller historien om et område i konstant forandring. Gaden har sit navn efter de såkaldte strandlodder - små jordlodder, som bønder og husmænd i Sundbyøster havde i området ned mod stranden i 1700- og 1800-tallet. Lodderne blev anvendt til græsning og indsamling af tang. Sideløbende lå her også en hørplantage, hvor hør blev dyrket og leveret til væverierne ved Søkvæsthuset og i Dragør. Dette vidner om en tid, hvor området var præget af landbrug og lokalt erhverv.

Med industrialiseringen ændrede området karakter. Fra slutningen af 1800-tallet og frem mod tiden omkring 1. verdenskrig tog udviklingen fart. De tidligere små lodsejendomme blev omdannet til et tæt industriområde, hvor fabrikker skød op side om side. Blandt de kendte aktører var Philips' fabrik, Brdr. Henze's skruebolte- og møtrikfabrik samt Toms Chokoladefabrik. Industrien og produktionen prægede hverdagen, og området fik en stærk erhvervsprofil, som satte sit præg på kvarterets identitet i næsten et århundrede. Omkring midten af 1990'erne begyndte industrien at trække sig tilbage, og nye typer erhverv fandt vej til området. Medieproduktion og kreative brancher fik en stadig mere fremtrædende rolle, og Strandlodsvej udviklede sig gradvist til et centrum for moderne erhverv - stadig med produktion som fundament, men nu i en ny form.

I dag har området omkring Strandlodsvej udviklet sig fra landbrugsjord og råt fabriksland til et attraktivt knudepunkt for både virksomheder og beboere. Her er en naturlig balance mellem byliv, kontorer, nyere boligbyggeri, caféer og grønne omgivelser, hvor Amager Strandpark og Kløvermarken ligger få minutter væk og bruges aktivt i hverdagen.

Ejendommen på Strandlodsvej 30 er en del af denne udvikling. Opført i 1958, har bygningen gennem årene været en vigtig del af områdets erhvervskarakter - og er det fortsat i dag, hvor den danner ramme om Viaplays danske hovedkontor. I nabobygningen på Jenagade 22, som Byggeselskab Mogens de Linde ligeledes ejer, har store produktionsselskaber som Metronome og Studios haft base, mens Viasat/Allente fortsat er en aktiv del af medie-og studieproduktionen i området.

Information og data

Dette erhvervslejemål, som kan anvendes til Kontor, ligger i København S. København S har postnummeret 2300, og ligger i kommunen København, som ligger i København. Lokalet er i alt 1.474 m2.

Lignende lokaler

Statistik over udviklingen i kontorlokaler til leje i København S over den sidste måned

Herunder ser du udviklingen i udbuddet og udlejningen af ledige kontorlokaler til leje i København S over den sidste måned. I den første kolonne ser du datoen. I den anden kolonne ser du det samlede antal kontorlokaler til leje i København S på datoen. I den tredje kolonne ser du antallet af nye kontorlokaler i København S der er udbudt til leje på datoen. I den fjerde kolonne ser du antallet af kontorlokaler i København S der er udlejet på datoen. Se også samlet statistik over alle udbudte kontorlokaler i København S over tid, samlet statistik over nye kontorlokaler i København S over tid, samlet statistik over udlejede kontorlokaler i København S over tid.

Dato Alle kontorlokaler til leje Nye kontorlokaler til leje Udlejede kontorlokaler
30. maj 2026 204 0 2
29. maj 2026 206 0 0
28. maj 2026 206 1 2
27. maj 2026 207 0 0
26. maj 2026 207 0 0
25. maj 2026 207 0 0
24. maj 2026 207 0 0
23. maj 2026 207 0 0
22. maj 2026 207 0 1
21. maj 2026 208 0 0
20. maj 2026 208 0 0
19. maj 2026 208 0 3
18. maj 2026 211 3 4
17. maj 2026 212 0 0
16. maj 2026 212 5 0
15. maj 2026 207 0 5
14. maj 2026 212 9 2
13. maj 2026 205 0 1
12. maj 2026 206 0 0
11. maj 2026 206 0 0
10. maj 2026 206 0 0
9. maj 2026 206 0 1
8. maj 2026 207 0 1
7. maj 2026 208 4 5
6. maj 2026 209 0 0
5. maj 2026 209 1 4
4. maj 2026 212 0 0
3. maj 2026 212 0 0
2. maj 2026 212 0 2
1. maj 2026 214 1 0
30. april 2026 213 3 0

Statistik over udbuddet af kontorlokaler til leje i København S

I nedenstående tabel ser du en række data om udbuddet af kontorlokaler til leje i København S. Se også samlet statistik over alle udbudte kontorlokaler i København S over tid, samlet statistik over nye kontorlokaler i København S over tid, samlet statistik over udlejede kontorlokaler i København S over tid.

Kontorlokaler
Antal ledige lokaler 214
Antal nye lokaler siden i går 0
Antal udlejede lokaler siden i går 2
Ledige m2 i alt 239.927
Gennemsnitlig pris per m2 per år uden drift 2.737
Højeste m2-pris 22.800
Laveste m2-pris 3,67