Lager til leje, Albertslund, Roskildevej 22
Roskildevej 22, 2620 Albertslund- Lager til leje
- 813 m2
- 50.831 kr. per måned
- Lager til leje
- 813 m2
- 50.831 kr. per måned
⚡ Se alle oplysninger om lejemålet og få direkte adgang til udlejerens kontaktoplysninger.
Lager til leje, Albertslund, Roskildevej 22
Fakta
Rapportér fejl- 310714
- Lager
- 813 m2
- 609.975 kr.
- 50.831 kr.
- 849.975 kr.
- 70.831 kr.
- 750,27 kr.
- 1.045,47 kr.
- 5,30 m
- 200
813 m² højloftet lagerhal med mulighed for kontor fra 400—1.280 m²
Området & Ejendommen:
Ejendommen er beliggende centralt i ét af Albertslunds mest eftertragtede erhvervskvarterer, med facade helt ud til Roskildevej, midt imellem Ring 3/4 og motorvejsnettet, som hurtigt og let får dig til transporteret rundt i Storkøbenhavn, til indre by, Københavns Lufthavn mm.
Ejendommen blev opført i 1967, og har i det mest af sin levetid (1986-2011), fungeret som det danske hovedsæde for AstraZeneca A/S.
Sidenhen er ejendommen opdelt og udlejet til virksomheder fra forskellige brancher og størrelser, der deles om en nu fælles kantine med frokost fra Durlevs Gourmæt, stort auditorium, 3 fælles mødelokaler til fri afbenyttelse, fitnessrum, bad og omklædning, samt et præsentabelt glasindgangsparti med loungemøblerog infoskærme.
Til ejendommen hører ca. 200 gratis parkeringspladser - heraf 10 med Clever ladestandere.
Om Lejemålet:
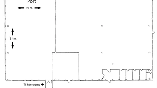
Lagerhallen udgør ét stor åbent rum på 31 m. x 19 m. med pæne lyse gulve, 5,3 meter til loftet, og massere af belysning fra både lamper og ovenlysvinduer.
Ejendommen ligger på en indhegnet grund, der altid er lukket af, og med gode parkeringsmuligheder - også lige foran indgangen til lagerhallen. Lejemålets eneste port udgør 2,29 m. i bredden og 3,19 m. i højden.
Fra lagerhallen kan man i tørvejr tilgå ejendommens hovedbygning, hvor det for nuværende er muligt at leje kontor i stueplan, 1. sal og 2. sal, fra 400 - 1.200 m². På vejen til kontorerne går man forbi ejendommens 3 fælles mødelokaler, konferencerum, kantine og fitnessrum.
Det er ligeledes muligt at leje depotrum i kælderen fra 20 - 150 m², som også kan tilgås med elevator.
Parkerings- og trafikforhold:
Der er omkring ejendommen ca. 200 gratis parkeringspladser til brug for ejendommens lejere og gæster – heraf 10 med ladestandere.
Der går Bus 123 lige ude foran ejendommen, på Roskildevej, der i dagtimerne kører hvert 15. minut mellem Glostrup St. – Roskilde St.
Der er ligeledes 1.1 km. til Albertslund St.
Størrelse:
Lagerhallen udgør 813 m² inkl. andel af fællesareal, og med mulighed for at leje yderligere 150 m² i nabolejemålet.
Leje:
Den månedlige leje udgør kr. 50.831,25 med tillæg af aconto drifts- og varmeudgifter.
Regulering af leje:
Basislejen reguleres årligt, pr. 1. januar, med udviklingen i nettoprisindekset, dog minimum 2%, første gang pr. 1. januar 2027.
Depositum:
Der beregnes et depositum svarende til 3 måneder, af den til enhver tid værende basisleje.
Driftsudgifter:
Der betales en andel af ejendommens driftsudgifter. Der udarbejdes årligt driftsregnskab efter fordelingstal.
Lejer betaler aconto driftsudgifter med kr. 295 pr. m², svarende til kr. 19.993,63 pr. måned.
Varme:
Alle lejere betaler en forholdsmæssig andel af varme og vand udgifterne. Der udarbejdes årligt varme- og vandregnskab efter fordelingstal.
Lejer betaler aconto varmebidrag med kr. 120,00 pr. m², svarende til kr. 8.133,00 pr. måned.
Moms:
Alle ydelser tillægges den til enhver tid gældende moms.
Vedligeholdelse:
Indvendig vedligeholdelse af det lejede påhviler lejeren.
Udvendig vedligeholdelse påhviler udlejeren.
Energimærke:
Ejendommen er pr. 25. november 2015 gennemgået og har af Energistyrelsen fået Energimærket ”C”.
Opsigelse:
I forbindelse med indgåelse af lejekontrakten forhandles mellem Lejer til Udlejer en uopsigelig lejeperiode, hvorefter lejemålet kan opsiges med 6 måneders varsel.
Indflytning:
Efter aftale.
Information og data
Dette lagerlejemål, ligger i Albertslund. Albertslund har postnummeret 2620, og ligger i kommunen Albertslund, som ligger i Storkøbenhavn. Lokalet er i alt 813 m2 med en loftshøjde på 5,30 m. Du kan leje dette lagerlokale for 609.975 kr. per år. 200 parkeringspladser medfølger.
Lignende lokaler
-
1700 m2 lager til leje i 2750 Ballerup, Vej ikke angivet
Fri kontakt- 138.125 kr. per måned
- 975 kr/m2/år
Ofte stillede spørgsmål
Statistik over udviklingen i lagerlokaler til leje i Albertslund over den sidste måned
Herunder ser du udviklingen i udbuddet og udlejningen af ledige lagerlokaler til leje i Albertslund over den sidste måned. I den første kolonne ser du datoen. I den anden kolonne ser du det samlede antal lagerlokaler til leje i Albertslund på datoen. I den tredje kolonne ser du antallet af nye lagerlokaler i Albertslund der er udbudt til leje på datoen. I den fjerde kolonne ser du antallet af lagerlokaler i Albertslund der er udlejet på datoen. Se også samlet statistik over alle udbudte lagerlokaler i Albertslund over tid, samlet statistik over nye lagerlokaler i Albertslund over tid, samlet statistik over udlejede lagerlokaler i Albertslund over tid.
| Dato | Alle lagerlokaler til leje | Nye lagerlokaler til leje | Udlejede lagerlokaler |
|---|---|---|---|
| 22. december 2025 | 47 | 0 | 0 |
| 21. december 2025 | 47 | 0 | 0 |
| 20. december 2025 | 47 | 0 | 0 |
| 19. december 2025 | 47 | 0 | 1 |
| 18. december 2025 | 48 | 0 | 0 |
| 17. december 2025 | 48 | 1 | 0 |
| 16. december 2025 | 47 | 0 | 0 |
| 15. december 2025 | 47 | 1 | 0 |
| 14. december 2025 | 46 | 0 | 1 |
| 13. december 2025 | 47 | 0 | 0 |
| 12. december 2025 | 47 | 1 | 0 |
| 11. december 2025 | 46 | 1 | 0 |
| 10. december 2025 | 45 | 2 | 0 |
| 9. december 2025 | 43 | 0 | 0 |
| 8. december 2025 | 43 | 0 | 0 |
| 7. december 2025 | 43 | 0 | 0 |
| 6. december 2025 | 43 | 0 | 3 |
| 5. december 2025 | 46 | 1 | 0 |
| 4. december 2025 | 45 | 0 | 1 |
| 3. december 2025 | 46 | 2 | 0 |
| 2. december 2025 | 44 | 0 | 1 |
| 1. december 2025 | 45 | 0 | 0 |
| 30. november 2025 | 45 | 0 | 0 |
| 29. november 2025 | 45 | 0 | 0 |
| 28. november 2025 | 45 | 0 | 0 |
| 27. november 2025 | 45 | 0 | 0 |
| 26. november 2025 | 45 | 5 | 0 |
| 25. november 2025 | 40 | 0 | 0 |
| 24. november 2025 | 40 | 0 | 0 |
| 23. november 2025 | 40 | 0 | 0 |
| 22. november 2025 | 40 | 0 | 0 |
Statistik over udbuddet af lagerlokaler til leje i Albertslund
I nedenstående tabel ser du en række data om udbuddet af lagerlokaler til leje i Albertslund. Se også samlet statistik over alle udbudte lagerlokaler i Albertslund over tid, samlet statistik over nye lagerlokaler i Albertslund over tid, samlet statistik over udlejede lagerlokaler i Albertslund over tid.
| Lagerlokaler | |
|---|---|
| Antal ledige lokaler | 46 |
| Antal nye lokaler siden i går | 0 |
| Antal udlejede lokaler siden i går | 0 |
| Ledige m2 i alt | 73.240 |
| Gennemsnitlig pris per m2 per år uden drift | 785 |
| Højeste m2-pris | 1.885,71 |
| Laveste m2-pris | 200 |