Foto leveres af Google Street View og kan være upræcist:
Fri kontakt

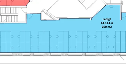
Kontor til leje, Vejle Centrum, Lysholt Allé 3

Lysholt Allé 3, 7100 Vejle
  • Kontor til leje
  • 260 m2
  • 28.708 kr. per måned
Kontor til leje, Vejle Centrum, Lysholt Allé 3
Lysholt Allé 3, 7100 Vejle
  • Kontor til leje
  • 260 m2
  • 28.708 kr. per måned
Få mere info om lokalet

⚡ Se alle oplysninger om lejemålet og få direkte adgang til udlejerens kontaktoplysninger.

Kontor til leje, Vejle Centrum, Lysholt Allé 3

DANDY Business Park Ejendomme
Tina Pedersen
tlf: 21440430
Se email-adressexxxxxxxxxxxxxxxx
Gå til hjemmesidexxxxxxxxxxxxxxxxx

Læs om udlejer

Fakta

Rapportér fejl
  • 315920
  • Kontor
  • 1.8.2026
  • 260 m2
  • 344.500 kr.
  • 28.708 kr.
  • 467.285 kr.
  • 38.940 kr.
  • 1.325 kr.
  • 1.797,25 kr.
  • 27

Stort, samlet kontorlokale i Food Innovation House

Plads til at vokse – uden at gå på kompromis

I Food Innovation House har vi nu et lyst og funktionelt kontor klar til en virksomhed, der har brug for lidt mere plads omkring sig.

Her får I:

Op 24-27 arbejdspladser i ét sammenhængende miljø
Masser af dagslys og ro til fordybelse
Eget the-køkken – så hverdagen glider lidt lettere
Fleksibel indretning, der kan tilpasses jeres måde at arbejde på
Her har du et lokale, der bare fungerer, og som kan indrettes på mange måder. Her kan teams sidde og arbejde sammen – og stadig have masser af plads.

Perfekt til scale-ups eller etablerede virksomheder, der er vokset ud af deres nuværende rammer.

Areal: 170 m² kontorplads + 90 m² fællesarealer.

Inkluderet i lejen:
Lejen dækker el, vand, varme og Wi-Fi i fællesområder. Bemærk dog, at internet, strøm og rengøring i selve lejemålet ikke er inkluderet.

Fordele ved at leje hos os:

Receptionistservice i åbningstiden
24/7 adgang til fitnessfaciliteter
Mulighed for attraktiv frokostordning
Unikke mødelokaler i hele DANDY Business Park
Effektiv viceværtsservice
Fællesskab og Netværk
Hos os bliver du en del af et åbent og inspirerende fællesskab. Vi deler viden, skaber relationer og inviterer til løbende arrangementer, der gør dig lidt klogere, lidt sundere – og sikrer, at der er plads til sjov i hverdagen.

Park Benefits
Som lejer får du adgang til vores eksklusive Park Benefits, der giver dine medarbejdere optimale arbejdsforhold. Mødelokaler, forplejning til gæster, frokostordning, fitnesscenter, tøjrens eller strøm til bilen og meget mere.

Økonomiske vilkår:
– Depositum: 6 måneders kontant husleje + 6 måneders depositum til driftsomkostninger
– Opsigelse: 12 måneders opsigelse til et kvartal efter endt bindingsperiode
– Huslejeregulering: NPI (dog minimum 2 %)
Alle priser er ekskl. moms.

Lignende lokaler

Ofte stillede spørgsmål

Statistik over udviklingen i kontorlokaler til leje i Vejle Centrum over den sidste måned

Herunder ser du udviklingen i udbuddet og udlejningen af ledige kontorlokaler til leje i Vejle Centrum over den sidste måned. I den første kolonne ser du datoen. I den anden kolonne ser du det samlede antal kontorlokaler til leje i Vejle Centrum på datoen. I den tredje kolonne ser du antallet af nye kontorlokaler i Vejle Centrum der er udbudt til leje på datoen. I den fjerde kolonne ser du antallet af kontorlokaler i Vejle Centrum der er udlejet på datoen. Se også samlet statistik over alle udbudte kontorlokaler i Vejle Centrum over tid, samlet statistik over nye kontorlokaler i Vejle Centrum over tid, samlet statistik over udlejede kontorlokaler i Vejle Centrum over tid.

Dato Alle kontorlokaler til leje Nye kontorlokaler til leje Udlejede kontorlokaler
7. maj 2026 108 0 2
6. maj 2026 110 0 0
5. maj 2026 110 0 0
4. maj 2026 110 0 0
3. maj 2026 110 0 0
2. maj 2026 110 0 0
1. maj 2026 110 1 1
30. april 2026 110 0 1
29. april 2026 111 1 5
28. april 2026 115 0 0
27. april 2026 115 0 0
26. april 2026 115 0 0
25. april 2026 115 2 3
24. april 2026 116 1 0
23. april 2026 115 6 0
22. april 2026 109 0 1
21. april 2026 110 0 0
20. april 2026 110 1 0
19. april 2026 109 1 0
18. april 2026 108 2 0
17. april 2026 106 2 2
16. april 2026 106 0 0
15. april 2026 106 2 0
14. april 2026 104 2 4
13. april 2026 106 0 0
12. april 2026 106 0 0
11. april 2026 106 1 0
10. april 2026 105 0 1
9. april 2026 106 0 0
8. april 2026 106 2 4
7. april 2026 108 0 0

Statistik over udbuddet af kontorlokaler til leje i Vejle Centrum

I nedenstående tabel ser du en række data om udbuddet af kontorlokaler til leje i Vejle Centrum. Se også samlet statistik over alle udbudte kontorlokaler i Vejle Centrum over tid, samlet statistik over nye kontorlokaler i Vejle Centrum over tid, samlet statistik over udlejede kontorlokaler i Vejle Centrum over tid.

Kontorlokaler
Antal ledige lokaler 110
Antal nye lokaler siden i går 0
Antal udlejede lokaler siden i går 2
Ledige m2 i alt 55.033
Gennemsnitlig pris per m2 per år uden drift 1.124
Højeste m2-pris 11.749,35
Laveste m2-pris 17,5