Foto leveres af Google Street View og kan være upræcist:
Fri kontakt

Lager til leje, København K, Quintus Bastion, Krudtløbsvej 14

Quintus Bastion, Krudtløbsvej 14, 1000-1499 København K
  • Lager til leje
  • 846 m2
Lager til leje, København K, Quintus Bastion, Krudtløbsvej 14
Quintus Bastion, Krudtløbsvej 14, 1000-1499 København K
  • Lager til leje
  • 846 m2
Få mere info om lokalet

⚡ Se alle oplysninger om lejemålet og få direkte adgang til udlejerens kontaktoplysninger.

Lager til leje, København K, Quintus Bastion, Krudtløbsvej 14

Byggeselskab Mogens de Linde
Lisa de Linde
tlf: 26 77 11 22
Se email-adressexxxxxxxxxxxxxxxx

PRO-UDLEJER

Læs mere

Læs om udlejer

Fakta

Rapportér fejl
  • 306815
  • Lager
  • 846 m2
  • Ikke angivet
  • 900 kr.

KrudtløbsvejQuintus Bastion

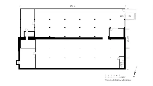
Under Vandkunsten Arkitekter på Quintus Bastion har du nu mulighed for at leje et stort lager. Der er let adgang til lageret med bil/vogn og det entreres enten fra trappe eller mekanisk lift fra terræn til kælderetagen.

Området

Quintus Bastion er en del af Københavns befæstning og daterer sig tilbage til 1600-tallet. Sammen med Nyholm er Quintus Bastion den nordligste del af Holmens fæstningsværker. Omkranset af vand og husbåde byder Quintus Bastion på hyggelig maritim Holmen stemning i en klasse helt for sig.

Quintus Bastion er fredet og omfattet af museumsloven, hvilket betyder, at det kun er eksisterende bygninger, der kan benyttes til erhverv og bolig. Mod syd for Bastionen findes det fredede voldområde, der ligeledes er bevaringsværdig, mod Nord ligger Refshaleøen.

Quintus Bastion tilgås med bil via Christianshavn eller Kløvermarken. Christianshavn og Holmen er solidt forbundet via cykel-/gangbroer, således Kongens Nytorv kan nås på blot 10 minutter på cykel. Desuden har Københavns Kommune besluttet at tilføje en ny cykel-/gangbro mellem Refshaleøen og Toldboden, dette projekteres i denne tid. I gå- og cykelafstand findes endvidere både Christianshavns Metro station, havnebussen og busforbindelse 2A.

Lejemålet

Kælderetagen af Forsvarets tidligere ejendom er indrettet til kælder. Mekanisk lift direkte til indgangsporten gør lageret yderst anvendeligt. Parkering kan tillejes i lejemålets nærhed.

Lageret har beton vægge, lofter, gulv, er indrettet med belysning, radiatorer og aflåselige zoner og rum. Der er ståhøjde i lejemålet, dog med nogle få lavere buer i konstruktionen.

Vi har brugt meget krudt på at skabe et unikt byrum

Hver morgen og aften siden 1788 har der lydt en salut fra kanonerne ovre på Batteriet Sixtus. Og mens nogle går på Noma, sidder andre på kajen med en picnickurv. Holmen er på mange måder et særpræget område. Her er man omringet af vand, grønne oaser og stednavne som Søminegraven og Krudtkøbsvej, der afslører, at Quintus Bastion førhen blev brugt til militære formål. Nu om dage er her helt utroligt fredeligt. Forvandlingen fra søværn og krudtlaboratorium til rekreativt byrum med moderne boliger og erhverv er sket med en enorm respekt for områdets historie. Vi har pillet ned, genbrugt og bygget op - bevaret det bevaringsværdige og håndplukket de materialer, der får det bedste frem i hver eneste bygning.

Quintus Bastion, er et mageløst miks af husbåde, hverdagsliv, virksomheder, kreativitet, krudt og kugler. Stedet har sin helt egen stemning, som vi har arbejdet på at fremhæve siden 1997, hvor Byggeselskab Mogens de Linde købte området af Forsvaret. Året forinden var Holmen lige blevet åbent for civile, og Quintus Bastion var præget af søværnets maskinehaller, magasinbygninger og træbarakker, som i dag er restaureret og omdannet til enestående lejemål - og som i vores optik stadig har Københavns ultimativt bedste beliggenhed.

Information og data

Dette lagerlejemål, ligger i København K. København K har postnummeret 1439, og ligger i kommunen København, som ligger i København. Lokalet er i alt 846 m2.

Lignende lokaler

Ofte stillede spørgsmål

Statistik over udviklingen i lagerlokaler til leje i København K over den sidste måned

Herunder ser du udviklingen i udbuddet og udlejningen af ledige lagerlokaler til leje i København K over den sidste måned. I den første kolonne ser du datoen. I den anden kolonne ser du det samlede antal lagerlokaler til leje i København K på datoen. I den tredje kolonne ser du antallet af nye lagerlokaler i København K der er udbudt til leje på datoen. I den fjerde kolonne ser du antallet af lagerlokaler i København K der er udlejet på datoen. Se også samlet statistik over alle udbudte lagerlokaler i København K over tid, samlet statistik over nye lagerlokaler i København K over tid, samlet statistik over udlejede lagerlokaler i København K over tid.

Dato Alle lagerlokaler til leje Nye lagerlokaler til leje Udlejede lagerlokaler
18. marts 2026 23 0 0
17. marts 2026 23 0 1
16. marts 2026 24 0 0
15. marts 2026 24 0 0
14. marts 2026 24 0 0
13. marts 2026 24 0 2
12. marts 2026 26 0 0
11. marts 2026 26 0 1
10. marts 2026 27 3 0
9. marts 2026 24 0 0
8. marts 2026 24 0 0
7. marts 2026 24 0 1
6. marts 2026 25 1 0
5. marts 2026 24 4 1
4. marts 2026 21 0 0
3. marts 2026 21 0 0
2. marts 2026 21 0 0
1. marts 2026 21 0 0
28. februar 2026 21 0 0
27. februar 2026 21 0 0
26. februar 2026 21 3 2
25. februar 2026 20 0 0
24. februar 2026 20 0 0
23. februar 2026 20 0 0
22. februar 2026 20 0 0
21. februar 2026 20 0 2
20. februar 2026 22 0 0
19. februar 2026 22 0 0
18. februar 2026 22 1 0
17. februar 2026 21 1 0
16. februar 2026 20 0 0

Statistik over udbuddet af lagerlokaler til leje i København K

I nedenstående tabel ser du en række data om udbuddet af lagerlokaler til leje i København K. Se også samlet statistik over alle udbudte lagerlokaler i København K over tid, samlet statistik over nye lagerlokaler i København K over tid, samlet statistik over udlejede lagerlokaler i København K over tid.

Lagerlokaler
Antal ledige lokaler 22
Antal nye lokaler siden i går 0
Antal udlejede lokaler siden i går 0
Ledige m2 i alt 28.761
Gennemsnitlig pris per m2 per år uden drift 2.066
Højeste m2-pris 12.813,62
Laveste m2-pris 686